分譲中物件
the CASA西安威1-13-I
6,980万円
-

JR東海道本線「茨木」駅 バス20分、「追手門学院前」停 徒歩5分

4LDK
二面接道の為、通風良好
南向きの為、陽当り良好
南側間口 約13.3m
CONCEPT
公園や学校が近く、心身ともにゆとりを感じる邸

第一種低層住居専用地域に指定された、閑静な西安威一丁目。周辺には小学校や中学校、「将軍山児童遊園」もあり、お子さまのいるご家庭に安心の住環境です。
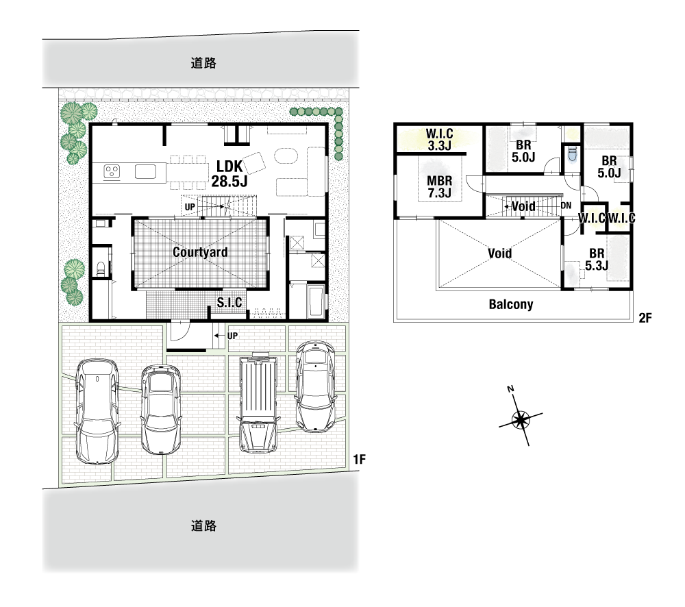
約28.5帖の広々としたLDKは、ゆとりと開放感に満ちた空間。中央に設けた中庭にテーブルやチェアを置けば、朝食や読書を楽しむアウトドアリビングとしても活用できます。さらに、付近には脱衣室と物干しスペースを配置。天候に左右されず効率的に洗濯物を干すことができます。
3つの寝室にはW.I.Cを完備しており、衣類やバッグ、靴、季節家電までを一括収納可能。掃除もしやすく、快適な暮らしを支えます。
駐車場は4台分のスペースを確保。複数の車をお持ちの方はもちろん、自転車やキャンプ用品なども余裕をもって置くことができ、屋外収納スペースとしても活用できます。
ゆとりある設計と充実の設備で、毎日の暮らしを支える住まいです。
PLAN
間取り

-

間取り : 4LDK+W.I.C×3+S.I.C
間取り図

6,980万円
4LDK+W.I.C×3+S.I.C
敷地面積: 244.20㎡(約73.87坪)
建物面積: 136.62㎡(約41.32坪)
LOCATION
周辺環境

周辺の施設
- 教育機関
・安威小学校…徒歩約11分(約850m)
・北中学校…徒歩約3分(約240m)
- 商業施設
・ニッコー安威店…徒歩約6分(約450m)
・ローソン茨木南安威一丁目店…徒歩約13分(約1,000m)
- 公園
・耳原公園…徒歩約5分(約350m)
- その他施設
・茨木安威郵便局…徒歩約8分(約600m)
OUTLINE
物件概要

| 物件名 | the CASA西安威1-13-I |
|---|---|
| 所在地 | 茨木市西安威1丁目 |
| 交通 | JR東海道本線「茨木」駅 バス20分、「追手門学院前」停 徒歩5分 |
| 総区画数 | 2区画 |
| 販売価格 |
|
| 間取り |
|
| 敷地面積 |
|
| 建物面積 |
|
| 現況 |
|
|---|---|
| 建築確認番号 |
|
| 建ぺい率 | 50% |
| 容積率 | 100% |
| 用途地域 | 第一種低層住居専用地域 |
| 地目 | 宅地 |
| 土地権利 | 所有権 |
| 設備 | 公営水道・関西電力・公共下水・都市ガス |
| 学校区 | 安威小学校、北中学校 |
担当店舗

関西不動産販売株式会社 高槻北店
大阪府高槻市緑が丘1丁目2番1号
営業時間 / 9:00~18:00定休日 / 水曜日駐車場 / 有
アクセス / 高槻市営バス「緑が丘」停より徒歩1分。府道6号線沿いにございます。
CONTACT
お問い合わせ

媒介会社までお気軽にお問い合わせください。
近くにある物件
-
4,980万円the CASA沢良宜西4-14-I
①大阪モノレール線「沢良宜」駅 徒歩2分
②阪急京都線「南茨木」駅 徒歩14分 -
5,680万円the CASA北春日丘3-13-I
JR東海道本線「茨木」駅 バス13分、「春日丘公園」停 徒歩5分
-
5,980万円the CASA北春日丘2-13-II
JR東海道本線「茨木」駅 バス9分、「翠湖園」停 徒歩6分
-
6,980万円the CASA西安威1-13-I
JR東海道本線「茨木」駅 バス20分、「追手門学院前」停 徒歩5分
-
5,980万円the CASA北春日丘2-13-I
①JR東海道本線「茨木」駅 バス9分、「翠湖園」停 徒歩2分
②モノレール彩都線「公園東口」駅 バス4分、「春光園」停 徒歩11分 -
5,380万円〜5,980万円the CASA北春日丘1-12-I
JR東海道本線「茨木」駅 バス6分、「北春日丘」停 徒歩4分
-
6,980万円the CASA北春日丘3-12-I
大阪モノレール彩都線「阪大病院前」駅 徒歩18分
-
3,680万円the CASA山手台5-12-I
JR東海道本線「茨木」駅 バス31分、「緑地公園前」停 徒歩5分
新着物件
-
3,480万円the CASA氷室町2-14-I
①JR東海道本線「摂津富田」駅 徒歩19分
②阪急京都線「富田」駅 バス12分、「氷室」停 徒歩4分 -
4,580万円the CASA日吉台六-14-I
JR東海道本線「高槻」駅 バス17分、「成合旭橋」停 徒歩2分
-
6,180万円〜6,380万円the CASA御陵溝浦町-14-I
阪急京都線「桂」駅 徒歩15分
-
4,980万円the CASA沢良宜西4-14-I
①大阪モノレール線「沢良宜」駅 徒歩2分
②阪急京都線「南茨木」駅 徒歩14分 -
3,980万円the CASA牧落3-14-I
阪急箕面線「牧落」駅 徒歩12分
-
6,980万円the CASA寿楽荘-14-I
①阪急今津線「宝塚南口」駅 徒歩9分
②阪急今津線「逆瀬川」駅 徒歩10分 -
3,980万円the CASA柱本6-14-I
阪急京都線「摂津市」駅 バス27分、「摂津ふれあいの里」停 徒歩8分
-
7,980万円the CASA若草町2-13-I
①阪神本線「鳴尾・武庫川女子大前」駅 徒歩12分
②阪神本線「武庫川」駅 徒歩17分
③阪神本線「甲子園」駅 徒歩18分










