神戸市東灘区
分譲中物件
the CASA住吉山手3-13-I
11,800万円
-

①阪急神戸線「御影」駅 徒歩12分
②JR東海道本線「住吉」駅 徒歩13分 
3LDK
便利な2WAYアクセス
道路と敷地の高低差無し

-
お電話でのお問い合わせ
TEL / 06-4950-8200
営業時間 / 9:30〜18:30
定休日 / なし
CONCEPT
住吉川のせせらぎを愉しむ多様なくつろぎが広がる住まい

住吉川沿いに広がる緑豊かな住宅街、住吉山手3丁目。阪神間モダニズムの洋風建築が数多く残るエリアとして知られています。また、交通アクセスもよく、通勤通学にも便利です。
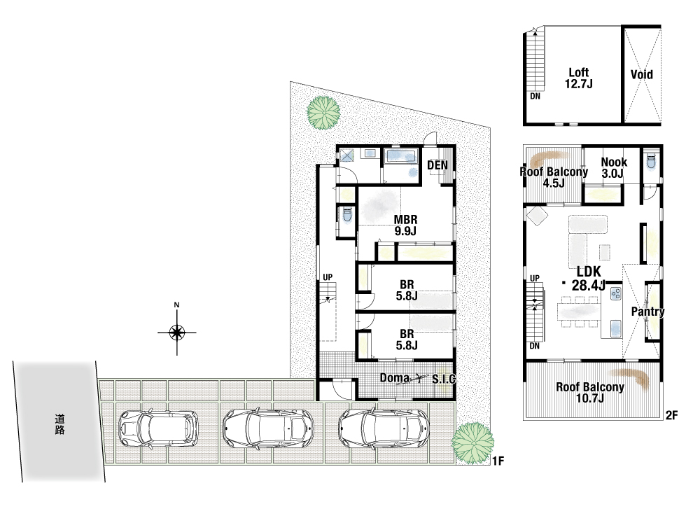
約28.4帖の広々としたLDKには、ロフトやヌックなどプライベート感のあるスペースを配置しました。開放感あふれる空間で家族団欒のひとときを過ごしたり、程よいくつろぎ空間で読書や趣味を楽しんだりと暮らしの幅が広がります。さらに、2ヶ所のルーフバルコニーを完備しており、青空を感じながら快適に過ごすことができるように設計しました。
1階の主寝室にはリモートワークに最適な書斎を設けました。大きなクローゼットもあり、かさばる衣類も綺麗に片付きます。また、玄関は荷物置き場として活用できる便利な土間空間をご用意。玄関周りを広く有効活用することができます。
穏やかな雰囲気の住宅街で多様なくつろぎを愉しむ邸宅です。
PLAN
間取り

-

間取り 3LDK+DEN(書斎)+ヌック+S.I.C +パントリー
間取り図

11,800万円
3LDK+DEN(書斎)+ヌック+S.I.C +パントリー
敷地面積: 186.93㎡(約56.54坪)
建物面積: 134.97㎡(約40.82坪)
LOCATION
周辺環境

周辺の施設
- 教育機関
・渦が森小学校…徒歩約20分(約1,600m)
・住吉中学校…徒歩約4分(約260m)
- 商業施設
・ライフ御影店…徒歩約14分(約1,100m)
・セブンイレブン神戸御影2丁目店…徒歩約14分(約1,100m)
- 公園
・深田池公園…徒歩約10分(約800m)
- その他施設
・上御影郵便局…徒歩約13分(約1,000m)
OUTLINE
物件概要

| 物件名 | the CASA住吉山手3-13-I |
|---|---|
| 所在地 | 神戸市東灘区住吉山手3丁目 |
| 交通 | ①阪急神戸線「御影」駅 徒歩12分 ②JR東海道本線「住吉」駅 徒歩13分 |
| 総区画数 | 1区画 |
| 販売価格 |
|
| 間取り |
|
| 敷地面積 |
|
| 建物面積 |
|
| 現況 |
|
|---|---|
| 建築確認番号 |
|
| 用途地域 | 第一種低層住居専用地域 |
| 地目 | 宅地 |
| 土地権利 | 所有権 |
| 設備 | 公営水道・関西電力・公共下水・都市ガス |
| 学校区 | 渦が森小学校、住吉中学校 |
担当店舗

関西不動産販売株式会社 尼崎店
兵庫県尼崎市長洲西通1丁目1番2号 JR尼崎駅前ビル
営業時間 / 9:30〜18:30定休日 / なし駐車場 / 有
アクセス / JR「尼崎」駅より徒歩2分。

-
お電話でのお問い合わせ
TEL / 06-4950-8200
営業時間 / 9:30〜18:30
定休日 / なし
CONTACT
お問い合わせ

媒介会社までお気軽にお問い合わせください。
近くにある物件
新着物件
-
3,480万円the CASA氷室町2-14-I
①JR東海道本線「摂津富田」駅 徒歩19分
②阪急京都線「富田」駅 バス12分、「氷室」停 徒歩4分 -
5,480万円the CASA城南町1-14-I
阪急京都線「高槻市」駅 バス6分、「東庄所」停 徒歩5分
-
4,580万円the CASA日吉台六-14-I
JR東海道本線「高槻」駅 バス17分、「成合旭橋」停 徒歩2分
-
6,180万円〜6,380万円the CASA御陵溝浦町-14-I
阪急京都線「桂」駅 徒歩15分
-
4,980万円the CASA沢良宜西4-14-I
①大阪モノレール線「沢良宜」駅 徒歩2分
②阪急京都線「南茨木」駅 徒歩14分 -
3,980万円the CASA牧落3-14-I
阪急箕面線「牧落」駅 徒歩12分
-
6,980万円the CASA寿楽荘-14-I
①阪急今津線「宝塚南口」駅 徒歩9分
②阪急今津線「逆瀬川」駅 徒歩10分 -
3,980万円the CASA柱本6-14-I
阪急京都線「摂津市」駅 バス27分、「摂津ふれあいの里」停 徒歩8分











![現地写真(現況) 基礎竣工[2025年12月20日撮影]](https://kansaisan.co.jp/casa_series/wp-content/uploads/2024/12/住吉山手3-13-I_2025.12.20_基礎竣工.jpg)








