角地の開放感を活かした、柔らかな陽光に満たされる住まい。
リビング階段のあるLDKは家族が集う機会を増やし、交流がより深まります。
木材やアイアン素材を組み合わせた、温もりの空間が完成しました。
角地の開放感を活かした、柔らかな陽光に満たされる住まい。 リビング階段のあるLDKは家族が集う機会を増やし、交流がより深まります。 木材やアイアン素材を組み合わせた、温もりの空間が完成しました。


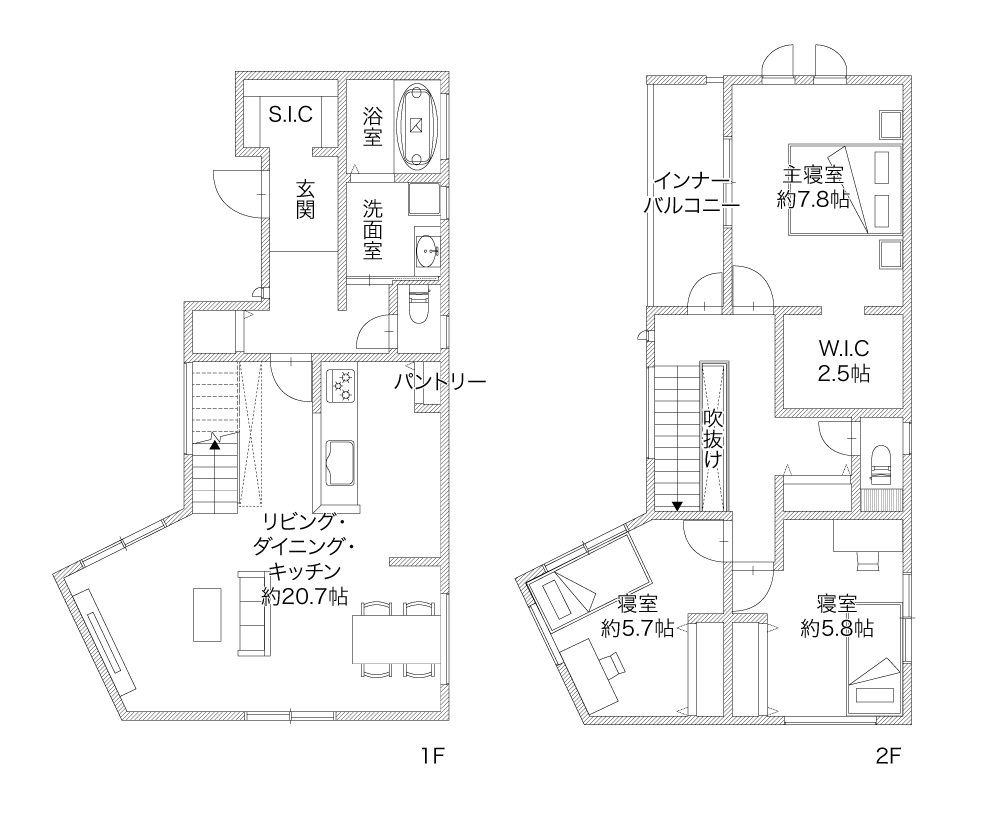
| 間取り | 3LDK+W.I.C+S.I.C+パントリー |
|---|---|
| 敷地面積 | 164.00㎡(約49.61坪) |
| 建物面積 | 100.61㎡(約30.43坪) |
家具・照明付き
5,480万円
| 価格 | 5,480万円 |
|---|---|
| 所在地 | 安岡寺町4丁目 |
| 交通 | JR東海道本線「高槻」駅 バス20分、 「寺谷町」停 徒歩3分 |
| 用途地域 | 第一種低層住居専用地域 |
| 構造 | 木造2階建 |
|---|---|
| 引渡 | 即可 |
| 取引形態 | 媒介 |