芦屋市
分譲中物件
the CASA朝日ケ丘町-13-I
14,800万円
-

JR東海道本線「芦屋」駅 バス8分、「岩園幼稚園前」停 徒歩3分

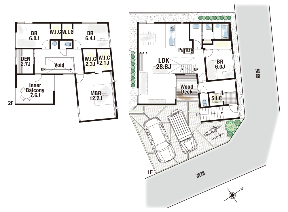
4LDK
角地の為、通風良好
南東向きの為、陽当り良好
広々使える4LDK

-
お電話でのお問い合わせ
TEL / 0798-31-0700
営業時間 / 9:30~18:30
定休日 / 水曜日
CONCEPT
芦屋を満喫する光と風に満ちた大空間LDKの邸

北側には六甲山系が広がり、芦屋の市街地や海が街の方々から見渡せる朝日ケ丘町。
角地に建ち、陽当たり通風ともに良好な邸。28帖の大空間LDKは、リビング階段上部の吹抜けとの組み合わせで圧倒的な開放感を実現しました。リビングに隣接するウッドデッキは、家族の憩いの場。心地良い光と爽やかな風が感じられます。2階の寝室には便利なW.I.Cを完備。1階にも寝室を用意しており、来客用のゲストルームとしてもお使いいただけます。他にも、リモートワークに便利な書斎や、雨の日も安心のインナーバルコニー、ゆったりとした2台分の駐車スペースなど住まう人にゆとりをもたらす設備をそろえました。
細部までこだわりが詰まった、家族の理想を叶える上質な邸です。
PLAN
間取り

-

間取り 4LDK+DEN(書斎)+W.I.C×4+S.I.C +パントリー
間取り図

14,800万円
4LDK+DEN(書斎)+W.I.C×4+S.I.C +パントリー
敷地面積: 172.82㎡(約52.27坪)
建物面積: 173.64㎡(約52.52坪)
LOCATION
周辺環境

周辺の施設
- 教育機関
・朝日ケ丘小学校…徒歩約9分(約650m)
・山手中学校…徒歩約29分(約2,300m)
- 商業施設
・いかり芦屋店…徒歩約8分(約600m)
・セブンイレブン芦屋東山町店…徒歩約8分(約600m)
- 公園
・岩ヶ平公園…徒歩約7分(約550m)
- その他施設
・芦屋東山郵便局…徒歩約7分(約550m)
OUTLINE
物件概要

| 物件名 | the CASA朝日ケ丘町-13-I |
|---|---|
| 所在地 | 芦屋市朝日ケ丘町 |
| 交通 | JR東海道本線「芦屋」駅 バス8分、「岩園幼稚園前」停 徒歩3分 |
| 総区画数 | 1区画 |
| 販売価格 |
|
| 間取り |
|
| 敷地面積 |
|
| 建物面積 |
|
| 現況 |
|
|---|---|
| 建築確認番号 |
|
| 建ぺい率 | 60% |
| 容積率 | 200% |
| 用途地域 | 第一種中高層住居専用地域 |
| 地目 | 宅地 |
| 土地権利 | 所有権 |
| 設備 | 公営水道・関西電力・公共下水・都市ガス |
| 学校区 | 朝日ケ丘小学校、山手中学校 |
担当店舗

関西不動産販売株式会社 西宮店
兵庫県西宮市産所町14番5号 ニュートンビル西宮1階
営業時間 / 9:30~18:30定休日 / 水曜日駐車場 / 有
アクセス / JR「さくら夙川」駅より徒歩約4分。国道2号線沿いにございます。

-
お電話でのお問い合わせ
TEL / 0798-31-0700
営業時間 / 9:30~18:30
定休日 / 水曜日
CONTACT
お問い合わせ

媒介会社までお気軽にお問い合わせください。
近くにある物件
新着物件
-
4,580万円the CASA日吉台六-14-I
JR東海道本線「高槻」駅 バス17分、「成合旭橋」停 徒歩2分
-
6,180万円〜6,380万円the CASA御陵溝浦町-14-I
阪急京都線「桂」駅 徒歩15分
-
4,980万円the CASA沢良宜西4-14-I
①大阪モノレール線「沢良宜」駅 徒歩2分
②阪急京都線「南茨木」駅 徒歩14分 -
3,980万円the CASA牧落3-14-I
阪急箕面線「牧落駅」駅 徒歩12分
-
6,980万円the CASA寿楽荘-14-I
①阪急今津線「宝塚南口」駅 徒歩9分
②阪急今津線「逆瀬川」駅 徒歩10分 -
3,980万円the CASA柱本6-14-I
阪急京都線「摂津市」駅 バス27分、「摂津ふれあいの里」停 徒歩8分
-
7,980万円the CASA若草町2-13-I
①阪神本線「鳴尾・武庫川女子大前」駅 徒歩12分
②阪神本線「武庫川」駅 徒歩17分
③阪神本線「甲子園」駅 徒歩18分 -
5,680万円the CASA北春日丘3-13-I
JR東海道本線「茨木」駅 バス13分、「春日丘公園」停 徒歩5分











