分譲中物件
the CASA北春日丘3-12-I
6,980万円
-

大阪モノレール彩都線「阪大病院前」駅 徒歩18分

3SSLDK〜4LDK
高台の為、陽当り・眺望良好
閑静な住宅街
CONCEPT
傾斜地を活かしたスキップフロアの住まい

大阪モノレール「阪大病院前」駅や吹田ICが周辺にあり交通至便なエリア、北春日丘3丁目。「茨城カンツリー倶楽部」ゴルフ場、「万博記念公園」や「ららぽーとEXPOCITY」に囲まれた立地のため、近場でアクティブに活動できる住環境です。
道路より高い位置に建物を建て、外部の視線を感じられにくい安心の敷地計画。スキップフロアを利用したプランニングで空間ごとにメリハリができます。また、両号地とも2台の駐車スペースを確保しました。1号地はリビングダイニングを横並びにし、配膳のしやすい動線を採用。パントリーも隣接しており、備蓄品をスッキリと収納できます。2号地はI型LDKを取り入れ、見通しのよい安心のメイン空間に。水廻りとバルコニーを隣接させているので効率的にお洗濯ができます。
お出かけしやすい立地で、家族がのびのびと暮らせる憩いの住まいです。
PLAN
間取り

-

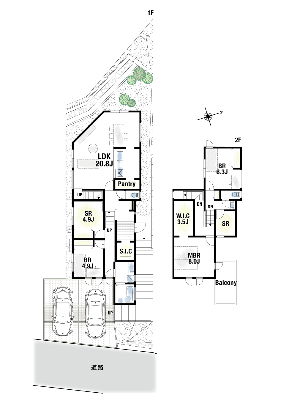
間取り1号地 : 3SSLDK+W.I.C+S.I.C+パントリー
-

間取り2号地 : 4LDK+W.I.C+S.I.C+パントリー
-

分譲地区画図
間取り図

1号地 6,980万円
3SSLDK+W.I.C+S.I.C+パントリー
敷地面積: 195.33㎡(約59.09坪)
建物面積: 131.04㎡(約39.63坪)

2号地 6,980万円
4LDK+W.I.C+S.I.C+パントリー
敷地面積: 173.80㎡(約52.57坪)
建物面積: 121.21㎡(約36.66坪)
区画図

分譲地区画図
全2区画全体区画図
区画図

分譲地区画図
全2区画全体区画図
LOCATION
周辺環境

周辺の施設
- 教育機関
・西小学校…徒歩約7分(約550m)
・西陵中学校…徒歩約19分(約1,500m)
- 商業施設
・マルヤス南春日丘店…徒歩約15分(約1,200m)
・ローソン茨木阪大病院前店…徒歩約17分(約1,300m)
- 公園
・春日丘公園…徒歩約5分(約400m)
- その他施設
・茨木春日丘郵便局…徒歩約8分(約600m)
OUTLINE
物件概要

| 物件名 | the CASA北春日丘3-12-I |
|---|---|
| 所在地 | 茨木市北春日丘3丁目 |
| 交通 | 大阪モノレール彩都線「阪大病院前」駅 徒歩18分 |
| 総区画数 | 2区画 |
| 販売価格 |
|
| 間取り |
|
| 敷地面積 |
|
| 建物面積 |
|
| 現況 |
|
|---|---|
| 建築確認番号 |
|
| 用途地域 | 第一種低層住居専用地域 |
| 地目 | 宅地 |
| 土地権利 | 所有権 |
| 設備 | 公営水道・関西電力・公共下水・都市ガス |
| 学校区 | 西小学校、西陵中学校 |
担当店舗

関西不動産販売株式会社 千里あきんど
大阪府豊中市新千里東町1丁目1番5号 大阪モノレール千里中央ビル7階
営業時間 / 9:00~18:00定休日 / 水曜日駐車場 / 有(契約駐車場:千里中央第1立体駐車場)
アクセス / 大阪モノレール「千里中央」駅より徒歩1分。北大阪急行「千里中央」駅より徒歩4分。
CONTACT
お問い合わせ

媒介会社までお気軽にお問い合わせください。
近くにある物件
-
4,980万円the CASA沢良宜西4-14-I
①大阪モノレール線「沢良宜」駅 徒歩2分
②阪急京都線「南茨木」駅 徒歩14分 -
5,680万円the CASA北春日丘3-13-I
JR東海道本線「茨木」駅 バス13分、「春日丘公園」停 徒歩5分
-
5,980万円the CASA北春日丘2-13-II
JR東海道本線「茨木」駅 バス9分、「翠湖園」停 徒歩6分
-
6,980万円the CASA西安威1-13-I
JR東海道本線「茨木」駅 バス20分、「追手門学院前」停 徒歩5分
-
5,980万円the CASA北春日丘2-13-I
①JR東海道本線「茨木」駅 バス9分、「翠湖園」停 徒歩2分
②モノレール彩都線「公園東口」駅 バス4分、「春光園」停 徒歩11分 -
5,380万円〜5,980万円the CASA北春日丘1-12-I
JR東海道本線「茨木」駅 バス6分、「北春日丘」停 徒歩4分
-
6,980万円the CASA北春日丘3-12-I
大阪モノレール彩都線「阪大病院前」駅 徒歩18分
-
3,680万円the CASA山手台5-12-I
JR東海道本線「茨木」駅 バス31分、「緑地公園前」停 徒歩5分
新着物件
-
4,580万円the CASA日吉台六-14-I
JR東海道本線「高槻」駅 バス17分、「成合旭橋」停 徒歩2分
-
6,180万円〜6,380万円the CASA御陵溝浦町-14-I
阪急京都線「桂」駅 徒歩15分
-
4,980万円the CASA沢良宜西4-14-I
①大阪モノレール線「沢良宜」駅 徒歩2分
②阪急京都線「南茨木」駅 徒歩14分 -
3,980万円the CASA牧落3-14-I
阪急箕面線「牧落駅」駅 徒歩12分
-
6,980万円the CASA寿楽荘-14-I
①阪急今津線「宝塚南口」駅 徒歩9分
②阪急今津線「逆瀬川」駅 徒歩10分 -
3,980万円the CASA柱本6-14-I
阪急京都線「摂津市」駅 バス27分、「摂津ふれあいの里」停 徒歩8分
-
7,980万円the CASA若草町2-13-I
①阪神本線「鳴尾・武庫川女子大前」駅 徒歩12分
②阪神本線「武庫川」駅 徒歩17分
③阪神本線「甲子園」駅 徒歩18分 -
5,680万円the CASA北春日丘3-13-I
JR東海道本線「茨木」駅 バス13分、「春日丘公園」停 徒歩5分










