川西市
分譲中物件
the CASA花屋敷1-11-II
6,280万円〜6,980万円
-

①阪急宝塚線「川西能勢口」駅 徒歩4分
②JR福知山線「川西池田」駅 徒歩10分 
3LDK〜3SLDK
便利な2WAYアクセス
JR「川西池田」駅 徒歩10分

-
お電話でのお問い合わせ
TEL / 072-737-4447
営業時間 / 9:30~18:30
定休日 / 水曜日
CONCEPT
空間のつながりが心地良い邸宅

趣深いお屋敷が今も数多く残る閑静な住宅街、花屋敷1丁目。JR福知山線・阪急宝塚本線の2駅がどちらも徒歩で容易にアクセスできます。また車で5分の距離に阪神高速道路があり、遠方のお出かけにも便利です。
各邸ともにLDKは20帖超えの広々空間。1号地、2号地のLDKにはスキップフロアを採用し、適度に区切りながらも空間を心地良く繋ぐ設計に仕上げました。
3号地は見通しやすい直線型のLDKで家族のコミュニケーションをより豊かにします。
同階には脱衣所兼家事室を設置し、コンパクトで効率的な家事導線で洗濯物が多いご家庭でも安心です。各邸それぞれに日用品のストックができる収納スペースやサービスルームが設けられており、ご家族のカタチに合った使い方ができます。
充実の収納量と家族の生活動線に配慮した、心地よいコミュニケーションが生まれる住まいが誕生しました。
PLAN
間取り

-

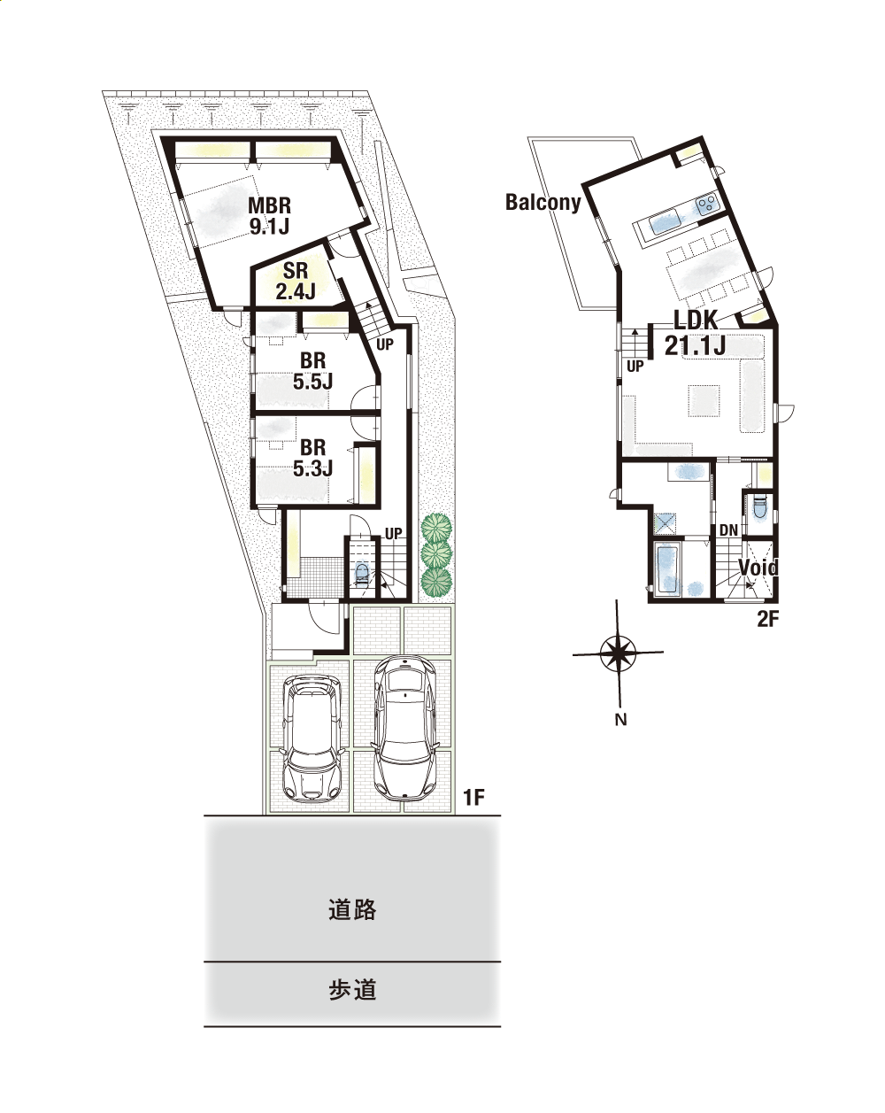
間取り1号地 : 3SLDK
-

間取り2号地 : 3LDK
-

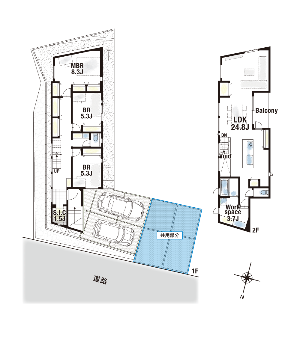
間取り3号地 : 3LDK+S.I.C
-

分譲地区画図
間取り図

1号地 6,280万円
3SLDK
敷地面積: 約144.30㎡(約43.65坪)
建物面積: 114.86㎡(約34.74坪)

2号地 6,680万円
3LDK
敷地面積: 約139.64㎡(約42.24坪)
建物面積: 101.92㎡(約30.83坪)

3号地 6,980万円
3LDK+S.I.C
敷地面積: 約166.05㎡(約50.23坪)
建物面積: 126.15㎡(約38.16坪)
区画図

分譲地区画図
全3区画全体区画図
区画図

分譲地区画図
全3区画全体区画図
LOCATION
周辺環境

周辺の施設
- 教育機関
・桜が丘小学校…徒歩約13分(約1,000m)
・川西中学校…徒歩約14分(約1,100m)
- 商業施設
・西友川西店…徒歩約4分(約290m)
・ローソン川西能勢口駅前店…徒歩約5分(約350m)
- 公園
・東花会児童遊園地…徒歩約1分(約80m)
- その他施設
・川西郵便局…徒歩約7分(約500m)
OUTLINE
物件概要

| 物件名 | the CASA花屋敷1-11-II |
|---|---|
| 所在地 | 川西市花屋敷1丁目 |
| 交通 | ①阪急宝塚線「川西能勢口」駅 徒歩4分 ②JR福知山線「川西池田」駅 徒歩10分 |
| 総区画数 | 3区画 |
| 販売価格 |
|
| 間取り |
|
| 敷地面積 |
|
| 建物面積 |
|
| 現況 |
|
|---|---|
| 建築確認番号 |
|
| 建ぺい率 | 50% |
| 容積率 | 100% |
| 用途地域 | 第一種低層住居専用地域 |
| 地目 | 宅地 |
| 土地権利 | 所有権 |
| 設備 | 公営水道・関西電力・公共下水・都市ガス |
| 学校区 | 桜が丘小学校、川西中学校 |
担当店舗

関西不動産販売株式会社 箕面店
大阪府箕面市箕面5丁目11番8号 峰松ビル1階・2階
営業時間 / 9:30~18:30定休日 / 水曜日駐車場 / 有(契約駐車場:箕面駅前第二駐車場)
アクセス / 阪急「箕面」駅から徒歩7分。阪急バス「箕面警察前」停徒歩1分。

-
お電話でのお問い合わせ
TEL / 072-737-4447
営業時間 / 9:30~18:30
定休日 / 水曜日
CONTACT
お問い合わせ

媒介会社までお気軽にお問い合わせください。
近くにある物件
新着物件
-
4,580万円the CASA日吉台六-14-I
JR東海道本線「高槻」駅 バス17分、「成合旭橋」停 徒歩2分
-
6,980万円the CASA寿楽荘-14-I
①阪急今津線「宝塚南口」駅 徒歩9分
②阪急今津線「逆瀬川」駅 徒歩10分 -
3,980万円the CASA柱本6-14-I
阪急京都線「摂津市」駅 バス27分、「摂津ふれあいの里」停 徒歩8分
-
7,980万円the CASA若草町2-13-I
①阪神本線「鳴尾・武庫川女子大前」駅 徒歩12分
②阪神本線「武庫川」駅 徒歩17分
③阪神本線「甲子園」駅 徒歩18分 -
5,680万円the CASA北春日丘3-13-I
JR東海道本線「茨木」駅 バス13分、「春日丘公園」停 徒歩5分
-
5,980万円the CASA毘沙門町-13-I
阪急甲陽線「甲陽園」駅 徒歩15分
-
7,980万円the CASA逆瀬台4-13-I
阪急今津線「逆瀬川」駅 バス9分、「逆瀬台一丁目」停 徒歩2分
-
5,180万円〜5,480万円the CASA樫切山-13-I
阪急千里線・大阪モノレール線「山田」駅 バス16分、「山田樫切山」停 徒歩7分












