高槻市
分譲中物件
the CASA柱本6-14-III
3,380万円
-

阪急京都線「茨木市」駅 バス20分、「柱本団地」停 徒歩6分

3LDK
道路と敷地の高低差無し
前面道路幅員 約5.2m
スーパーとコンビニ 徒歩圏内
CONCEPT
2階LDKがもたらす家族のための穏やかな時間

徒歩圏内に小学校やスーパーが揃う柱本6丁目。付近の河川敷には公園や野球場も整備されており、休日には家族でスポーツを満喫することができます。
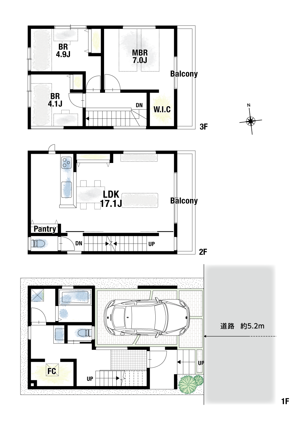
暮らしの中心となるLDKは2階に配置することで、通行人の視線を気にせず、ゆったりとした時間を過ごすことができます。また、間取りは直線型を採用しているため、料理をしながらでも子どもや家族の様子をすぐに確認することができます。
バルコニーはLDKと主寝室の2箇所に隣接しており、洗濯物が多い日、布団や毛布なども安心して干すことが可能です。さらに、パントリーやW.I.C、ファミリークローゼットなどの大容量収納をご用意しました。日用品や生活家電をすっきり整理でき、いつも綺麗な暮らしを叶えます。
運動が気軽に楽しめる住環境と、日々の生活を豊かにする工夫を凝らしたプランです。
PLAN
間取り

-

間取り 3LDK+FC+W.I.C+パントリー
間取り図

3,380万円
3LDK+FC+W.I.C+パントリー
敷地面積: 52.78㎡(約15.96坪)
建物面積: 109.29㎡(約33.06坪)
LOCATION
周辺環境

周辺の施設
- 教育機関
・柱本小学校…徒歩約5分(約400m)
・第七中学校…徒歩約24分(約1,900m)
- 商業施設
・食品館アプロ柱本店…徒歩約5分(約400m)
・セブンイレブン高槻柱本店…徒歩約5分(約400m)
- 公園
・柱本南公園…徒歩約2分(約130m)
- その他施設
・高槻柱本郵便局…徒歩約7分(約500m)
OUTLINE
物件概要

| 物件名 | the CASA柱本6-14-III |
|---|---|
| 所在地 | 高槻市柱本6丁目 |
| 交通 | 阪急京都線「茨木市」駅 バス20分、「柱本団地」停 徒歩6分 |
| 総区画数 | 1区画 |
| 販売価格 |
|
| 間取り |
|
| 敷地面積 |
|
| 建物面積 |
|
| 現況 |
|
|---|---|
| 建築確認番号 |
|
| 建ぺい率 | 60% |
| 容積率 | 200% |
| 用途地域 | 第一種中高層住居専用地域 |
| 地目 | 宅地 |
| 土地権利 | 所有権 |
| 設備 | 公営水道・関西電力・公共下水・都市ガス |
| 学校区 | 柱本小学校、第七中学校 |
担当店舗

関西不動産販売株式会社 本社 L.O.A事業部
大阪府高槻市南芥川町16番3号
営業時間 / 9:00~18:00定休日 / なし駐車場 / 有
アクセス / JR「高槻」駅より徒歩約12分。阪急「高槻市」駅より徒歩約20分。国道171号線沿いにございます。
CONTACT
お問い合わせ

媒介会社までお気軽にお問い合わせください。
近くにある物件
-
4,980万円the CASA南平台4-14-I
JR東海道本線「摂津富田」駅 バス16分、「南平台西口」停 徒歩2分
-
3,480万円the CASA氷室町2-14-I
①JR東海道本線「摂津富田」駅 徒歩19分
②阪急京都線「富田」駅 バス12分、「氷室」停 徒歩4分 -
5,480万円the CASA古曽部町3-14-I
①JR東海道本線「高槻」駅 バス7分、「古曽部台」停 徒歩4分
②JR東海道本線「高槻」駅 徒歩19分 -
3,380万円the CASA柱本6-14-III
阪急京都線「茨木市」駅 バス20分、「柱本団地」停 徒歩6分
-
4,580万円the CASA宮之川原3-14-I
JR東海道本線「高槻」駅 バス28分、「伏原」停 徒歩5分
-
4,580万円the CASA日吉台六-14-I
JR東海道本線「高槻」駅 バス17分、「成合旭橋」停 徒歩2分
-
3,980万円the CASA柱本6-14-I
阪急京都線「摂津市」駅 バス27分、「摂津ふれあいの里」停 徒歩8分
-
4,980万円the CASA日吉台三-13-IV
JR東海道本線「高槻」駅 バス16分、「中央公園」停 徒歩8分
新着物件
-
4,480万円the CASA生瀬高台-13-II
JR福知山線「生瀬」駅 徒歩12分
-
4,980万円the CASA南平台4-14-I
JR東海道本線「摂津富田」駅 バス16分、「南平台西口」停 徒歩2分
-
4,280万円〜5,280万円the CASA五月丘4-14-I
阪急宝塚線「池田」駅 バス13分、「渋谷中学校前」停 徒歩3分
-
4,980万円〜5,880万円the CASA山手町3-14-I
阪急千里線「関大前」駅 徒歩12分
-
3,480万円the CASA氷室町2-14-I
①JR東海道本線「摂津富田」駅 徒歩19分
②阪急京都線「富田」駅 バス12分、「氷室」停 徒歩4分 -
4,980万円the CASA桜ガ丘-14-I
①JR福知山線「宝塚」駅 徒歩12分
②阪急宝塚線「宝塚」駅 徒歩13分 -
5,480万円the CASA古曽部町3-14-I
①JR東海道本線「高槻」駅 バス7分、「古曽部台」停 徒歩4分
②JR東海道本線「高槻」駅 徒歩19分 -
5,280万円the CASA上ケ原六-14-I
阪急今津線「甲東園」駅 バス12分、「上ケ原六番町」停 徒歩1分















