西宮市
契約済
the CASA苦楽園四-14-I
-

阪急甲陽線「苦楽園口」駅 バス6分、「苦楽園」停 徒歩10分

4LDK
道路と敷地の高低差無し
高台の為、眺望良好
広々間口 約11.3m
有効敷地面積 約48.57坪

-
お電話でのお問い合わせ
TEL / 0798-31-0700
営業時間 / 9:30~18:30
定休日 / 水曜日
CONCEPT
高台の魅力を享受する利便性を備えた邸

六甲山系の麓、芦屋市との境界近くに位置する苦楽園四番町。街の各所から西宮市内や大阪湾を見下ろす眺望があり、落ち着きのある街並みが広がるエリアです。
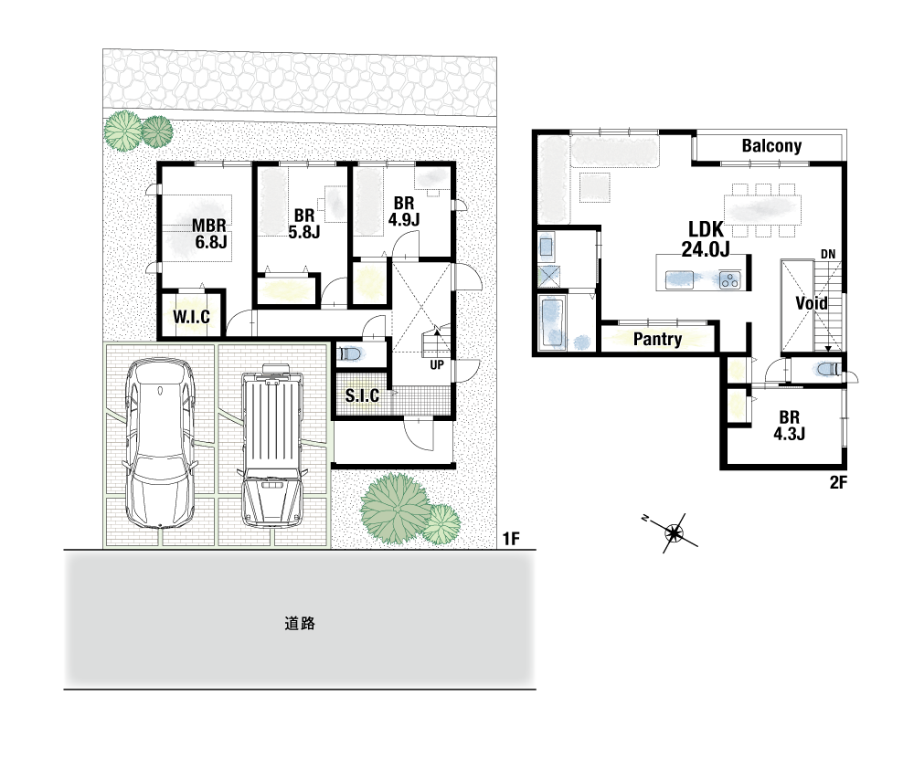
約24帖のゆとりあるLDKにはアイランドキッチンを採用。回遊しやすい動線のため、複数人でクッキングを楽しむことができます。パントリーでは食器や食品ストック、生活家電を収納することが可能。キッチンスペースを綺麗に保ちます。また、キッチンや浴室などの水廻りは一箇所に集約。料理の合間に洗濯やお風呂掃除をするなど、日々の家事をスムーズに行える動線を確保しました。寝室は4部屋をご用意。主寝室や子ども部屋に加え、書斎やゲストルームなど、ライフスタイルに合わせて多彩に活用することができます。
高台ならではの開放感と日常の利便性を兼ね備えた、心地よい暮らしを叶える住まいです。
PLAN
間取り

-

間取り: (4LDK+W.I.C+S.I.C+パントリー)
間取り図

4,580万円
4LDK+W.I.C+S.I.C+パントリー
敷地面積: 約160.57㎡(約48.57坪)
建物面積: 121.64㎡(約36.79坪)
LOCATION
周辺環境

周辺の施設
- 教育機関
・苦楽園小学校…徒歩約10分(約800m)
・苦楽園中学校…徒歩約10分(約750m)
- 商業施設
・関西スーパー苦楽園店…車約5分(約1,700m)
・セブンイレブン西宮樋之池町店…車約4分(約1,600m)
- 公園
・苦楽園さんらく公園…徒歩約6分(約450m)
- その他施設
・西宮樋ノ池郵便局…車約5分(約1,800m)
OUTLINE
物件概要

| 物件名 | the CASA苦楽園四-14-I |
|---|---|
| 所在地 | 西宮市苦楽園四番町 |
| 交通 | 阪急甲陽線「苦楽園口」駅 バス6分、「苦楽園」停 徒歩10分 |
| 総区画数 | 1区画 |
| 販売価格 |
|
| 間取り |
|
| 敷地面積 |
|
| 建物面積 |
|
| 現況 |
|
|---|---|
| 建築確認番号 |
|
| 建ぺい率 | 40% |
| 容積率 | 100% |
| 用途地域 | 第一種低層住居専用地域 |
| 地目 | 宅地 |
| 土地権利 | 所有権 |
| 設備 | 公営水道・関西電力・公共下水・都市ガス |
| 学校区 | 苦楽園小学校、苦楽園中学校 |
担当店舗

関西不動産販売株式会社 西宮店
兵庫県西宮市産所町14番5号 ニュートンビル西宮1階
営業時間 / 9:30~18:30定休日 / 水曜日駐車場 / 有
アクセス / JR「さくら夙川」駅より徒歩約4分。国道2号線沿いにございます。

-
お電話でのお問い合わせ
TEL / 0798-31-0700
営業時間 / 9:30~18:30
定休日 / 水曜日
CONTACT
お問い合わせ

近くにある物件
-
4,480万円the CASA生瀬高台-13-II
JR福知山線「生瀬」駅 徒歩12分
-
5,280万円the CASA上ケ原六-14-I
阪急今津線「甲東園」駅 バス12分、「上ケ原六番町」停 徒歩1分
-
4,680万円the CASA深津町-14-I
①阪急神戸線「西宮北口」駅 徒歩10分
②阪急今津線「阪神国道」駅 徒歩13分
③JR東海道本線「西宮」駅 徒歩17分 -
5,880万円〜5,980万円the CASA仁川町6-14-I
阪急今津線「仁川」駅 徒歩19分
-
6,980万円the CASA剣谷町-13-I
阪急神戸線「夙川」駅 バス12分、「柏堂町」停 徒歩7分
-
5,980万円the CASA毘沙門町-13-I
阪急甲陽線「甲陽園」駅 徒歩15分
-
6,980万円the CASA仁川町1-13-I
阪急今津線「仁川」駅 徒歩11分
-
7,280万円the CASA浜町-13-I
阪神本線「西宮」駅 徒歩13分
新着物件
-
4,480万円the CASA生瀬高台-13-II
JR福知山線「生瀬」駅 徒歩12分
-
4,980万円the CASA大冠町2-14-I
阪急京都線「高槻市」駅 バス12分、「大冠町」停 徒歩5分
-
4,980万円the CASA南平台4-14-I
JR東海道本線「摂津富田」駅 バス16分、「南平台西口」停 徒歩2分
-
4,280万円〜5,280万円the CASA五月丘4-14-I
阪急宝塚線「池田」駅 バス13分、「渋谷中学校前」停 徒歩3分
-
4,980万円〜5,880万円the CASA山手町3-14-I
阪急千里線「関大前」駅 徒歩12分
-
3,580万円〜3,780万円the CASA花屋敷荘園3-14-I
①能勢電鉄妙見線「川西能勢口」駅 徒歩17分
②阪急宝塚線「川西能勢口」駅 徒歩17分 -
4,180万円the CASA広瀬4-14-I
①阪急京都線「水無瀬」駅 徒歩9分
②JR東海道本線「島本」駅 徒歩11分 -
3,480万円the CASA氷室町2-14-I
①JR東海道本線「摂津富田」駅 徒歩19分
②阪急京都線「富田」駅 バス12分、「氷室」停 徒歩4分










