宝塚市
分譲中物件
the CASA花屋敷松ガ丘-9-I・II
4,580万円
-

能勢電鉄妙見線「滝山」駅 徒歩18分

3LDK
北東側道路幅員 約6.5m
閑静な住宅街

-
お電話でのお問い合わせ
TEL / 0797-69-8181
営業時間 / 9:00~18:00
定休日 / 水曜日
CONCEPT
緑豊かな地に建つ家族が自然と集うリビングのある住まい

長尾山系がもたらす自然の恵を享受する花屋敷松ガ丘。森林浴を堪能できる「北雲雀きずきの森」やお花見が楽しめる「松ガ丘公園」などがあり、四季を感じながら暮らすことができます。
家族が自然と一つの空間に集まり、団らんを育む全3邸のプラン。各居室への移動は必ずリビング階段を経由するようになっており、家族の繋がりがより強いものになります。
1号地は玄関土間を広く確保し、大人数でもスムーズに靴の脱ぎ履きが行えます。大容量のS.I.Cも完備しており、整理整頓が捗る設計になりました。2号地は陽当りのいい南向きバルコニーをご用意。屋根付きのため、雨の日でも洗濯物を干すことができます。3号地はリモートワークや趣味に没頭できる書斎を配置。プライベート感のある空間で気兼ねなく過ごすことができます。
自然を味わいながら家族のひと時を大切にする住まいです。
PLAN
間取り

-

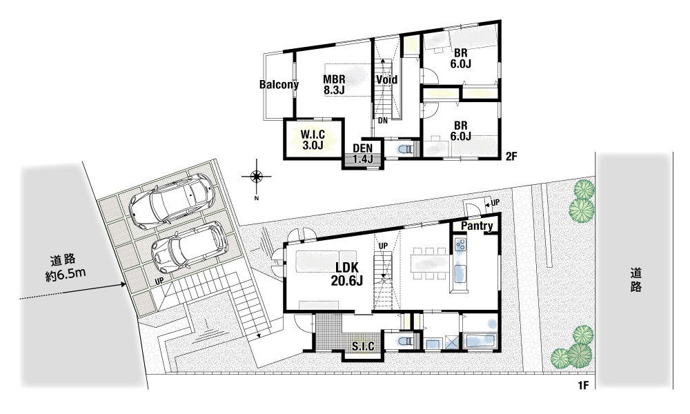
間取り1号地 : 3LDK+DEN(書斎)+W.I.C+S.I.C+パントリー
-

間取り2号地 : 3LDK+W.I.C×2+S.I.C+パントリー
-

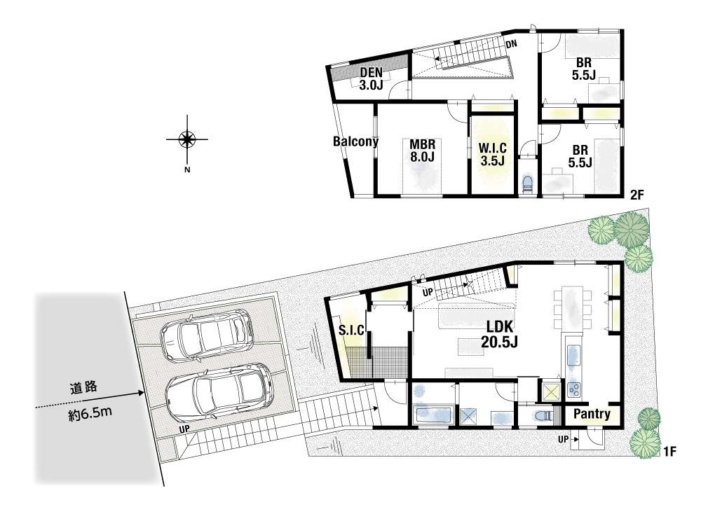
間取り3号地 : 3LDK+DEN(書斎)+W.I.C+S.I.C +パントリー
-

分譲地区画図
間取り図

1号地 4,580万円
3LDK+DEN(書斎)+W.I.C+S.I.C+パントリー
敷地面積: 179.10㎡(約54.17坪)
建物面積: 110.51㎡(約33.42坪)

2号地 4,580万円
3LDK+W.I.C×2+S.I.C+パントリー
敷地面積: 173.67㎡(約52.53坪)
建物面積: 113.16㎡(約34.23坪)

3号地 4,580万円
3LDK+DEN(書斎)+W.I.C+S.I.C +パントリー
敷地面積: 151.02㎡(約45.68坪)
建物面積: 125.61㎡(約37.99坪)
区画図

分譲地区画図
全3区画全体区画図
区画図

分譲地区画図
全3区画全体区画図
LOCATION
周辺環境

周辺の施設
- 教育機関
・長尾台小学校…徒歩約28分(約2,200m)
・南ひばりガ丘中学校…徒歩約39分(約3,100m)
- 商業施設
・コープミニ萩原台…徒歩約9分(約700m)
・ローソン川西火打二丁目店…徒歩約13分(約1,000m)
- 公園
・松ガ丘公園…徒歩約2分(約110m)
- その他施設
・川西萩原台郵便局…徒歩約9分(約650m)
OUTLINE
物件概要

| 物件名 | the CASA花屋敷松ガ丘-9-I・II |
|---|---|
| 所在地 | 宝塚市花屋敷松ガ丘 |
| 交通 | 能勢電鉄妙見線「滝山」駅 徒歩18分 |
| 総区画数 | 3区画 |
| 販売価格 |
|
| 間取り |
|
| 敷地面積 |
|
| 建物面積 |
|
| 現況 |
|
|---|---|
| 建築確認番号 |
|
| 用途地域 | 第一種低層住居専用地域 |
| 地目 | 宅地 |
| 土地権利 | 所有権 |
| 設備 | 公営水道・関西電力・公共下水・都市ガス |
| 学校区 | 長尾台小学校、南ひばりガ丘中学校 |
担当店舗

関西不動産販売株式会社 宝塚店
兵庫県宝塚市逆瀬川1丁目1番1号 イトーピア参鐘館2階
営業時間 / 9:00~18:00定休日 / 水曜日駐車場 / 有(契約駐車場:タイムズアピア3)
アクセス / 阪急「逆瀬川」駅より徒歩約2分。

-
お電話でのお問い合わせ
TEL / 0797-69-8181
営業時間 / 9:00~18:00
定休日 / 水曜日
CONTACT
お問い合わせ

媒介会社までお気軽にお問い合わせください。
近くにある物件
-
6,980万円the CASA寿楽荘-14-I
①阪急今津線「宝塚南口」駅 徒歩9分
②阪急今津線「逆瀬川」駅 徒歩10分 -
6,980万円〜7,980万円the CASA逆瀬台4-13-I
阪急今津線「逆瀬川」駅 バス9分、「逆瀬台一丁目」停 徒歩2分
-
6,580万円the CASA逆瀬台6-13-I
阪急今津線「逆瀬川」駅 バス13分、「青葉台口」停 徒歩5分
-
12,800万円the CASA南口2-13-I
阪急宝塚線「宝塚南口」駅 徒歩3分
-
4,980万円the CASA売布ガ丘-13-I
①阪急宝塚線「売布神社」駅 徒歩7分
②阪急宝塚線「清荒神」駅 徒歩11分 -
3,980万円the CASA花屋敷荘園3-13-I
①阪急宝塚線「川西能勢口」駅 徒歩17分
②能勢電鉄妙見線「川西能勢口」駅 徒歩17分 -
3,980万円the CASAふじガ丘-13-I
阪急宝塚線「雲雀丘花屋敷」駅 バス9分、「満願寺」停 徒歩7分
-
6,280万円the CASA雲雀丘2-13-I
阪急宝塚線「雲雀丘花屋敷」駅 徒歩10分
新着物件
-
4,580万円the CASA日吉台六-14-I
JR東海道本線「高槻」駅 バス17分、「成合旭橋」停 徒歩2分
-
6,180万円〜6,380万円the CASA御陵溝浦町-14-I
阪急京都線「桂」駅 徒歩15分
-
4,980万円the CASA沢良宜西4-14-I
①大阪モノレール線「沢良宜」駅 徒歩2分
②阪急京都線「南茨木」駅 徒歩14分 -
3,980万円the CASA牧落3-14-I
阪急箕面線「牧落」駅 徒歩12分
-
6,980万円the CASA寿楽荘-14-I
①阪急今津線「宝塚南口」駅 徒歩9分
②阪急今津線「逆瀬川」駅 徒歩10分 -
3,980万円the CASA柱本6-14-I
阪急京都線「摂津市」駅 バス27分、「摂津ふれあいの里」停 徒歩8分
-
7,980万円the CASA若草町2-13-I
①阪神本線「鳴尾・武庫川女子大前」駅 徒歩12分
②阪神本線「武庫川」駅 徒歩17分
③阪神本線「甲子園」駅 徒歩18分 -
5,680万円the CASA北春日丘3-13-I
JR東海道本線「茨木」駅 バス13分、「春日丘公園」停 徒歩5分




![現地写真(現況) 基礎竣工 [2025年12月9日撮影]](https://kansaisan.co.jp/casa_series/wp-content/uploads/2021/03/花屋敷松ガ丘-9-I・II_進捗-1.jpg)




