宝塚市
分譲中物件
the CASA南口2-13-I
12,800万円
-

阪急宝塚線「宝塚南口」駅 徒歩3分

4LDK
建物面積 約54.48坪
敷地面積 約92.48坪
阪急 「宝塚南口」駅 徒歩3分
CONCEPT
駅近×広々LDKのある開放感に満ちた住まい

阪急「宝塚南口」駅へ徒歩圏内という利便性に優れた南口2丁目。さらに、宝塚インターチェンジへ車で約30分とアクセス良好で、休日のドライブや家族でのお出かけにも快適な立地です。
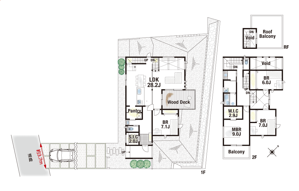
駅近でありながら、約100坪というゆとりある敷地に3台分の駐車スペースを確保した外構計画。約28.2帖のLDKは、スキップフロアによって空間を緩やかに分け、暮らしに立体的な広がりとリズムをもたらします。ウッドデッキを隣接させることで、内と外がつながる開放感を演出し、アウトドアリビングのような贅沢な時間を過ごせます。
また、屋上には開放感あふれるルーフバルコニーを設計。空の広がりを身近に感じながら、ホームパーティなど非日常のひとときを味わえる空間です。W.I.CやS.I.Cをはじめとした豊富な収納も随所に備え、大人数の来客もスマートに対応できます。
利便性と自然の心地よさ、そして暮らしに品格を与える空間美が調和した邸宅です。
PLAN
間取り

-

間取り 4LDK+W.I.C+S.I.C+パントリー
間取り図

12,800万円
4LDK+W.I.C+S.I.C+パントリー
敷地面積: 305.72㎡(約92.48坪)
建物面積: 180.10㎡(約54.48坪)
LOCATION
周辺環境

周辺の施設
- 教育機関
・宝塚第一小学校…徒歩約5分(約400m)
・宝梅中学校…徒歩約18分(約1,400m)
- 商業施設
・いかり宝塚店…徒歩約5分(約350m)
・セブンイレブン宝塚南口2丁目店…徒歩約3分(約230m)
- 公園
・南口駅前公園…徒歩約7分(約550m)
- その他施設
・宝塚南口郵便局…徒歩約3分(約240m)
OUTLINE
物件概要

| 物件名 | the CASA南口2-13-I |
|---|---|
| 所在地 | 宝塚市南口2丁目 |
| 交通 | 阪急宝塚線「宝塚南口」駅 徒歩3分 |
| 総区画数 | 1区画 |
| 販売価格 |
|
| 間取り |
|
| 敷地面積 |
|
| 建物面積 |
|
| 現況 |
|
|---|---|
| 建築確認番号 |
|
| 建ぺい率 | 60% |
| 容積率 | 160% |
| 用途地域 | 第一種中高層住居専用地域 |
| 地目 | 宅地 |
| 土地権利 | 所有権 |
| 設備 | 公営水道・関西電力・公共下水 |
| 学校区 | 宝塚第一小学校、宝梅中学校 |
担当店舗

関西不動産販売株式会社 本社 L.O.A事業部
大阪府高槻市南芥川町16番3号
営業時間 / 9:00~18:00定休日 / なし駐車場 / 有
アクセス / JR「高槻」駅より徒歩約12分。阪急「高槻市」駅より徒歩約20分。国道171号線沿いにございます。
CONTACT
お問い合わせ

媒介会社までお気軽にお問い合わせください。
近くにある物件
-
4,980万円the CASA桜ガ丘-14-I
①JR福知山線「宝塚」駅 徒歩12分
②阪急宝塚線「宝塚」駅 徒歩13分 -
6,980万円the CASA寿楽荘-14-I
①阪急今津線「宝塚南口」駅 徒歩9分
②阪急今津線「逆瀬川」駅 徒歩10分 -
6,980万円the CASA武庫山2-14-I
①阪急今津線「宝塚南口」駅 徒歩10分
②阪急宝塚線「宝塚」駅 徒歩13分
③JR福知山線「宝塚」駅 徒歩13分 -
6,980万円〜7,980万円the CASA逆瀬台4-13-I
阪急今津線「逆瀬川」駅 バス9分、「逆瀬台一丁目」停 徒歩2分
-
6,580万円the CASA逆瀬台6-13-I
阪急今津線「逆瀬川」駅 バス13分、「青葉台口」停 徒歩5分
-
6,980万円the CASA雲雀丘3-13-I
阪急宝塚本線「雲雀丘花屋敷」駅 徒歩12分
-
12,800万円the CASA南口2-13-I
阪急宝塚線「宝塚南口」駅 徒歩3分
-
5,480万円the CASA野上5-13-I・II
阪急今津線「逆瀬川」駅 徒歩19分
新着物件
-
4,980万円the CASA南平台4-14-I
JR東海道本線「摂津富田」駅 バス16分、「南平台西口」停 徒歩2分
-
4,980万円〜5,880万円the CASA山手町3-14-I
阪急千里線「関大前」駅 徒歩12分
-
3,480万円the CASA氷室町2-14-I
①JR東海道本線「摂津富田」駅 徒歩19分
②阪急京都線「富田」駅 バス12分、「氷室」停 徒歩4分 -
4,980万円the CASA桜ガ丘-14-I
①JR福知山線「宝塚」駅 徒歩12分
②阪急宝塚線「宝塚」駅 徒歩13分 -
5,480万円the CASA古曽部町3-14-I
①JR東海道本線「高槻」駅 バス7分、「古曽部台」停 徒歩4分
②JR東海道本線「高槻」駅 徒歩19分 -
3,580万円the CASA畑原通5-14-I
①阪急神戸線「王子公園」駅 徒歩9分
②JR東海道本線「摩耶」駅 徒歩14分 -
3,380万円the CASA柱本6-14-III
阪急京都線「茨木市」駅 バス20分、「柱本団地」停 徒歩6分
-
4,580万円the CASA宮之川原3-14-I
JR東海道本線「高槻」駅 バス28分、「伏原」停 徒歩5分








