宝塚市
分譲中物件
the CASA逆瀬台4-13-I
6,980万円〜7,980万円
-

阪急今津線「逆瀬川」駅 バス9分、「逆瀬台一丁目」停 徒歩2分

4LDK
高台・南側空きの為、陽当り・通風良好
道路と敷地の高低差無し
閑静な住宅街
CONCEPT
行者山の自然が息づく陽光と爽風に包まれる邸

第一種低層住居専用地域に指定された逆瀬台4丁目。付近に公園が点在し、お子様がのびのびと過ごせます。また、行者山の登山口まで車で5分圏内と、気軽にハイキングも楽しめます。
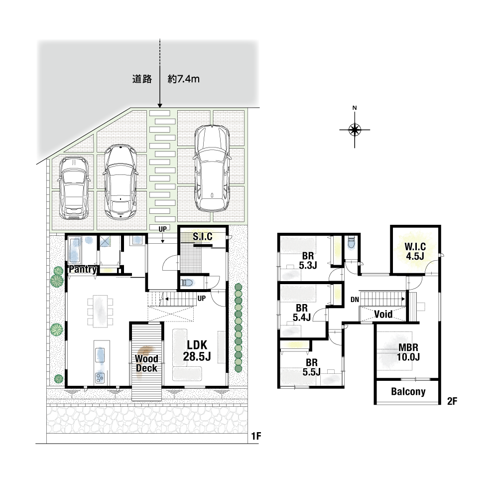
1号地は大きな吹き抜けとリビング階段のある24.2帖のLDKを設け、家族みんなが自然と集まりたくなる空間を創出。テレビを見たり食事を楽しんだりと家族のひと時がより豊かになります。2号地はウッドデッキを囲んだコの字型の間取りを採用。家に居ながら外の心地よさも感じられる、のびやかな開放空間になりました。さらに、南側に窓を配置することで、室内全体が自然光に満たされます。寝室は両邸ともに4部屋をご用意。家族それぞれのプライベート空間や趣味の場、ゲストルームとしても利用できます。主寝室には収納力たっぷりのW.I.Cも備えています。駐車場もゆとりのある広さを確保しており、自転車やバイクの駐輪場としても活用可能です。
身近に自然を感じながら、光と風に心癒されるプランニングをご提案します。
PLAN
間取り

-

間取り1号地 : 4LDK+W.I.C+S.I.C
-

間取り2号地 : 4LDK+W.I.C+S.I.C+パントリー
-

分譲地区画図
間取り図

1号地 6,980万円
4LDK+W.I.C+S.I.C
敷地面積: 約175.15㎡(約52.98坪)
建物面積: 151.36㎡(約45.78坪)

2号地 7,980万円
4LDK+W.I.C+S.I.C+パントリー
敷地面積: 約209.93㎡(約63.50坪)
建物面積: 141.59㎡(約42.83坪)
区画図

分譲地区画図
全2区画全体区画図
区画図

分譲地区画図
全2区画全体区画図
LOCATION
周辺環境

周辺の施設
- 教育機関
・逆瀬台小学校…徒歩約11分(約850m)
・光ガ丘中学校…徒歩約22分(約1,700m)
- 商業施設
・KOHYO逆瀬川店…徒歩約27分(約2,100m)
・ファミリーマート逆瀬台一丁目店…徒歩約6分(約450m)
- 公園
・逆瀬台4丁目公園…徒歩約1分(約80m)
- その他施設
・宝塚逆瀬台郵便局…徒歩約2分(約130m)
OUTLINE
物件概要

| 物件名 | the CASA逆瀬台4-13-I |
|---|---|
| 所在地 | 宝塚市逆瀬台4丁目 |
| 交通 | 阪急今津線「逆瀬川」駅 バス9分、「逆瀬台一丁目」停 徒歩2分 |
| 総区画数 | 2区画 |
| 販売価格 |
|
| 間取り |
|
| 敷地面積 |
|
| 建物面積 |
|
| 現況 |
|
|---|---|
| 建築確認番号 |
|
| 建ぺい率 | 50% |
| 容積率 | 100% |
| 用途地域 | 第一種低層住居専用地域 |
| 地目 | 宅地 |
| 土地権利 | 所有権 |
| 設備 | 公営水道・関西電力・公共下水・都市ガス |
| 学校区 | 逆瀬台小学校、光ガ丘中学校 |
担当店舗

関西不動産販売株式会社 千里あきんど
大阪府豊中市新千里東町1丁目1番5号 大阪モノレール千里中央ビル7階
営業時間 / 9:00~18:00定休日 / 水曜日駐車場 / 有(契約駐車場:千里中央第1立体駐車場)
アクセス / 大阪モノレール「千里中央」駅より徒歩1分。北大阪急行「千里中央」駅より徒歩4分。
CONTACT
お問い合わせ

媒介会社までお気軽にお問い合わせください。
近くにある物件
-
4,980万円the CASA桜ガ丘-14-I
①JR福知山線「宝塚」駅 徒歩12分
②阪急宝塚線「宝塚」駅 徒歩13分 -
6,980万円the CASA寿楽荘-14-I
①阪急今津線「宝塚南口」駅 徒歩9分
②阪急今津線「逆瀬川」駅 徒歩10分 -
6,980万円〜7,980万円the CASA逆瀬台4-13-I
阪急今津線「逆瀬川」駅 バス9分、「逆瀬台一丁目」停 徒歩2分
-
6,580万円the CASA逆瀬台6-13-I
阪急今津線「逆瀬川」駅 バス13分、「青葉台口」停 徒歩5分
-
6,980万円the CASA雲雀丘3-13-I
阪急宝塚本線「雲雀丘花屋敷」駅 徒歩12分
-
12,800万円the CASA南口2-13-I
阪急宝塚線「宝塚南口」駅 徒歩3分
-
5,480万円the CASA野上5-13-I・II
阪急今津線「逆瀬川」駅 徒歩19分
-
3,980万円the CASA花屋敷荘園3-13-I
①阪急宝塚線「川西能勢口」駅 徒歩17分
②能勢電鉄妙見線「川西能勢口」駅 徒歩17分
新着物件
-
3,480万円the CASA氷室町2-14-I
①JR東海道本線「摂津富田」駅 徒歩19分
②阪急京都線「富田」駅 バス12分、「氷室」停 徒歩4分 -
4,980万円the CASA桜ガ丘-14-I
①JR福知山線「宝塚」駅 徒歩12分
②阪急宝塚線「宝塚」駅 徒歩13分 -
5,480万円the CASA古曽部町3-14-I
①JR東海道本線「高槻」駅 バス7分、「古曽部台」停 徒歩4分
②JR東海道本線「高槻」駅 徒歩19分 -
3,580万円the CASA畑原通5-14-I
①阪急神戸線「王子公園」駅 徒歩9分
②JR東海道本線「摩耶」駅 徒歩14分 -
4,580万円the CASA日吉台六-14-I
JR東海道本線「高槻」駅 バス17分、「成合旭橋」停 徒歩2分
-
6,180万円〜6,380万円the CASA御陵溝浦町-14-I
阪急京都線「桂」駅 徒歩15分
-
5,480万円the CASA東泉丘2-14-I
北大阪急行線「桃山台」駅 徒歩14分
-
4,980万円the CASA沢良宜西4-14-I
①大阪モノレール線「沢良宜」駅 徒歩2分
②阪急京都線「南茨木」駅 徒歩14分



















