MODEL HOUSE
ー the CASA愛宕山-11-II ー
  • 上部の梁や化粧柱がアクセントになる
    南東から光が差し込む明るいLDK

  • 落ち着いた色味で統一した
    モダンな雰囲気のダイニング

  • 家族との会話が自然と生まれる
    ペニンシュラキッチンを採用

  • グレーのクロスをあしらった
    やわらかな光に包まれる寝室

  • ガーデニングやカフェタイムを楽しむ
    日常を彩るウッドデッキ

  • 青空を存分に堪能できる
    開放感溢れるルーフバルコニー

このモデルハウスを見学する

CONCEPT

ふたつの外空間が暮らしを彩る邸宅

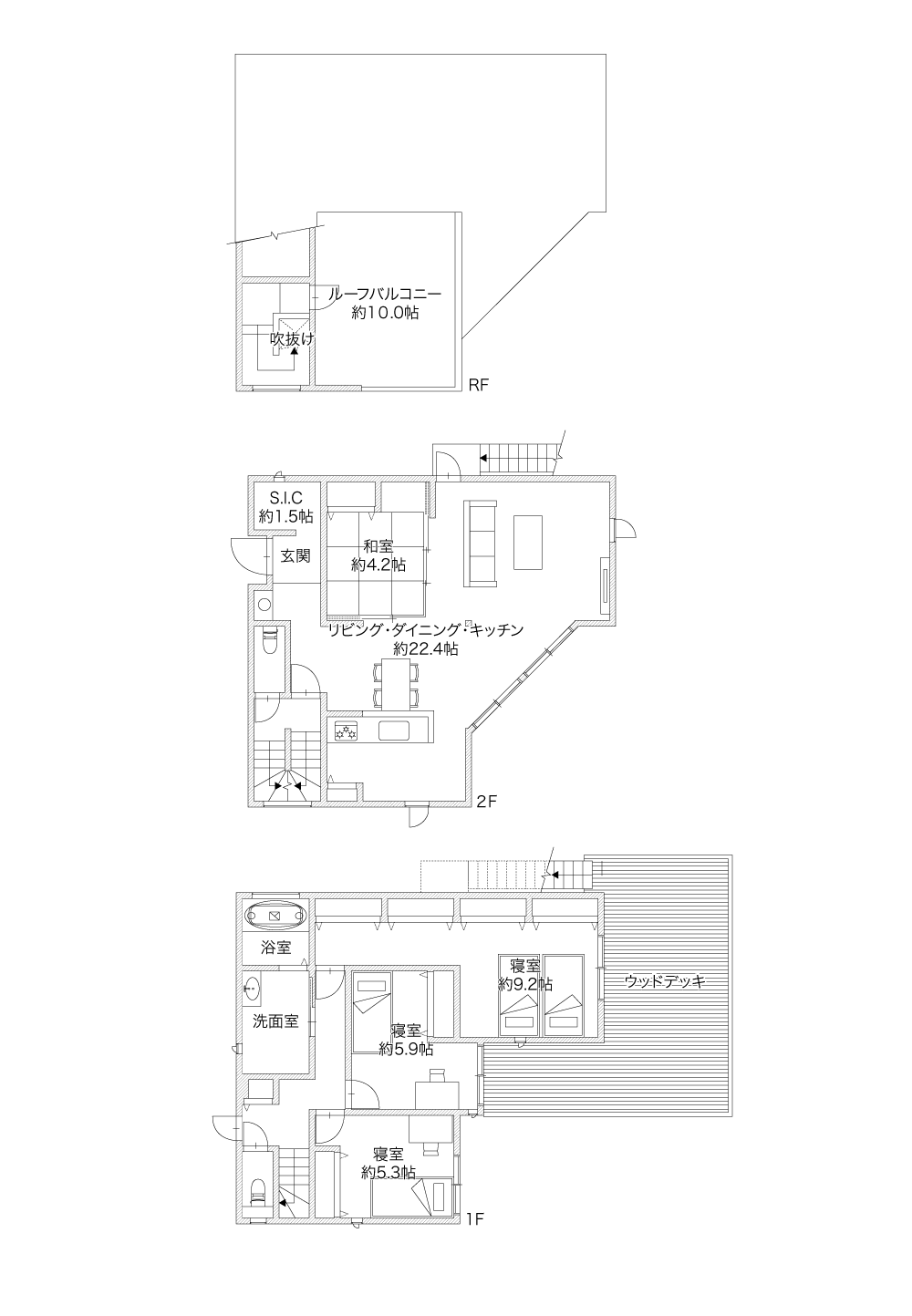
南東の窓から光が入る明るいLDKは、隣接する和室の扉を開け放つことで約26帖の大空間を創出。
ウッドデッキやルーフバルコニーでは、日光浴や読書など心地よい時間を楽しめます。
光と空を身近に感じながら、上質なひとときを過ごせる住まいが完成しました。

南東の窓から光が入る明るいLDKは、隣接する和室の扉を開け放つことで約26帖の大空間を創出。 ウッドデッキやルーフバルコニーでは、日光浴や読書など心地よい時間を楽しめます。 光と空を身近に感じながら、上質なひとときを過ごせる住まいが完成しました。

PLAN

間取り 4LDK+S.I.C
敷地面積 279.15㎡(約84.44坪)
建物面積 125.08㎡(約37.83坪)

家具・照明付き

8,980

このモデルハウスを見学する

GALLERY

LDK

Dining

Kitchen

Japanese Room

Room

Wash Space

Entrance

Approach

Parking

Appearance

Wood Deck

Roof Balcony

OUTLINE

価格 8,980万円
所在地 西宮市愛宕山
交通 阪急今津線「門戸厄神」駅 徒歩17分
用途地域 第一種低層住居専用地域
構造 木造2階建
引渡 即可
取引形態 媒介
モデルハウスのお問い合わせ
モデルハウスのお問い合わせ
モデルハウスの見学や物件に関するご質問は、
媒介会社までお気軽にお問い合わせください。
物件名【必須】
お問い合わせ内容【必須】
見学希望日
見学希望時間
お名前【必須】
お名前(フリガナ)
ご希望連絡方法【必須】
メールアドレス【必須】
電話番号【必須】
郵便番号
※郵便番号を入力すると自動で住所が入力されます
ご住所
ご質問・ご相談等
PAGE TOP