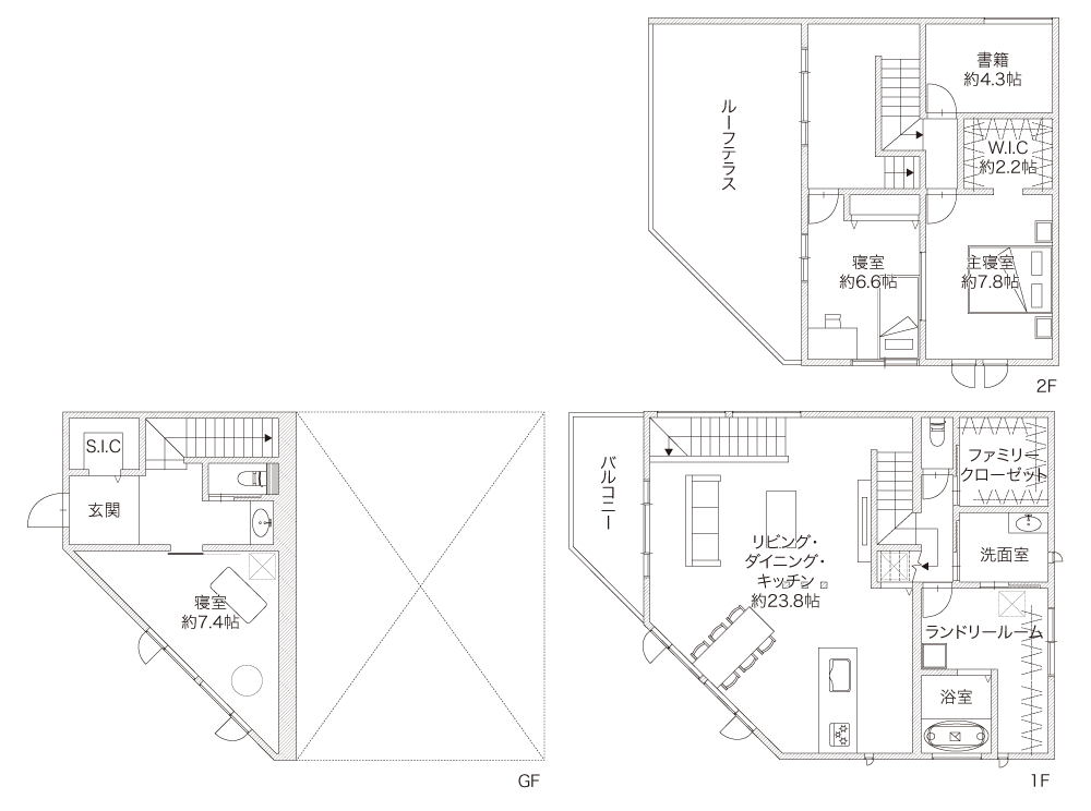
プライベート感を確保しながらも、光を取り込む開放的なリビング。
広々としたルーフテラスでは、さまざまなレジャーを愉しむことができます。
多様なライフスタイルと調和する上質な住まいが完成しました。
プライベート感を確保しながらも、光を取り込む開放的なリビング。 広々としたルーフテラスでは、さまざまなレジャーを愉しむことができます。 多様なライフスタイルと調和する上質な住まいが完成しました。


| 間取り | 3LDK+DEN(書斎)+FC+W.I.C+S.I.C |
|---|---|
| 敷地面積 | 155.15㎡(約46.93坪) |
| 建物面積 | 153.40㎡(約46.40坪) |
家具・照明付き
8,980万円
| 価格 | 8,980万円 |
|---|---|
| 所在地 | 神戸市灘区六甲台町 |
| 交通 | 阪急神戸線「六甲」駅 徒歩17分 |
| 用途地域 | 第一種中高層住居専用地域 |
| 構造 | 木造3階建 |
|---|---|
| 引渡 | 即可 |
| 取引形態 | 媒介 |