尼崎市
分譲中物件
the CASA西昆陽2-13-I
3,980万円
-

阪急神戸線「武庫之荘」駅 バス6分、「時友」停 徒歩12分

3LDK
道路と敷地の高低差無し
近隣商業施設充実

-
お電話でのお問い合わせ
TEL / 06-4950-8200
営業時間 / 9:30〜18:30
定休日 / なし
CONCEPT
自然と調和し家族が集う心地よい住まい

戸建てや集合住宅が立ち並ぶ穏やかな住宅街、西昆陽2丁目。西側には武庫川が流れ、秋には約550万本のコスモスが咲き誇る「武庫川髭の渡しコスモス園」が楽しめる人気のスポットです。整備された河川敷や豊かな自然に囲まれ、安心して暮らせる住環境が広がっています。
1階には広々21.5帖の直線型LDKを配置。家族が自然と集まり、ひとつながりの空間で心地よい時間を過ごせます。中央のリビング階段には吹抜けを配し、上下階のつながりを感じられる開放的なデザインに。リビングの一角には、お子様の勉強や在宅ワークにもぴったりなカウンタースペースを設けました。キッチンは動線効率に優れたL字型を採用し、調理や片付けがスムーズに行えるよう工夫されています。さらに、S.I.Cや各居室収納も充実。いつでもすっきりとした空間を保てます。
開放感と機能性を兼ね備え、家族のつながりを大切にした邸で、穏やかな日々をお過ごしいただけます。
PLAN
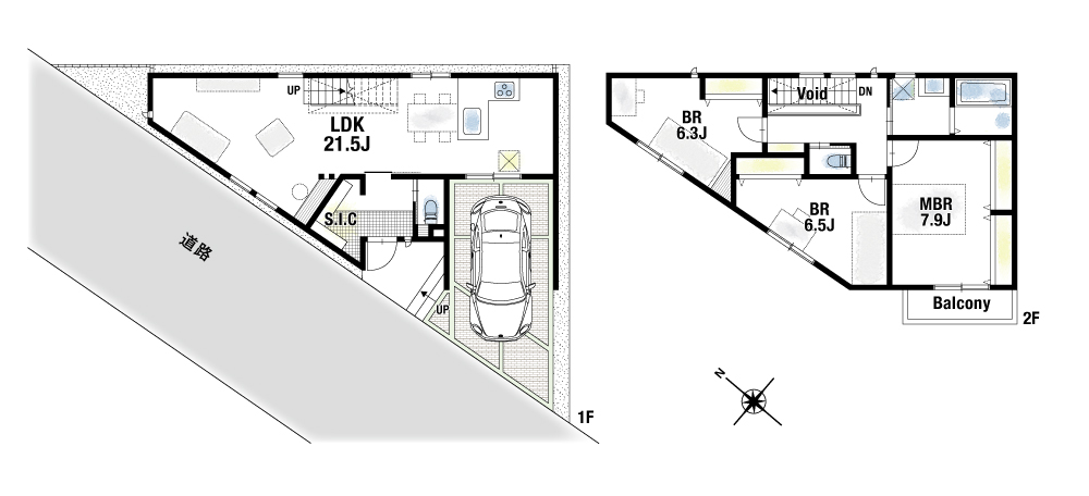
間取り

-

間取り1号地 : 3LDK+S.I.C
-

分譲地区画図
間取り図

1号地 3,980万円
3LDK+S.I.C
敷地面積: 約82.05㎡(約24.82坪)
建物面積: 111.70㎡(約33.78坪)
区画図

分譲地区画図
全7区画全体区画図
区画図

分譲地区画図
全7区画全体区画図
LOCATION
周辺環境

周辺の施設
- 教育機関
武庫北小学校…徒歩約3分(約200m)
常陽中学校…徒歩約6分(約450m)
- 商業施設
イズミヤショッピングセンター昆陽…徒歩約11分(約850m)
ローソン伊丹山五丁目店…徒歩約12分(約900m)
- 公園
昆陽の台団地子ども広場…徒歩約3分(約220m)
- その他施設
尼崎時友郵便局…徒歩約13分(約1,000m)
OUTLINE
物件概要

| 物件名 | the CASA西昆陽2-13-I |
|---|---|
| 所在地 | 尼崎市西昆陽2丁目 |
| 交通 | 阪急神戸線「武庫之荘」駅 バス6分、「時友」停 徒歩12分 |
| 総区画数 | 7区画 |
| 販売価格 |
|
| 間取り |
|
| 敷地面積 |
|
| 建物面積 |
|
| 現況 |
|
|---|---|
| 建築確認番号 |
|
| 建ぺい率 | 60% |
| 容積率 | 200% |
| 用途地域 | 第一種中高層住居専用地域 |
| 地目 | 宅地 |
| 土地権利 | 所有権 |
| 設備 | 公営水道・関西電力・公共下水・都市ガス |
| 学校区 | 武庫北小学校、常陽中学校 |
担当店舗

関西不動産販売株式会社 尼崎店
兵庫県尼崎市長洲西通1丁目1番2号 JR尼崎駅前ビル
営業時間 / 9:30〜18:30定休日 / なし駐車場 / 有
アクセス / JR「尼崎」駅より徒歩2分。

-
お電話でのお問い合わせ
TEL / 06-4950-8200
営業時間 / 9:30〜18:30
定休日 / なし
CONTACT
お問い合わせ

媒介会社までお気軽にお問い合わせください。
近くにある物件
新着物件
-
4,980万円the CASA南平台4-14-I
JR東海道本線「摂津富田」駅 バス16分、「南平台西口」停 徒歩2分
-
4,280万円〜5,280万円the CASA五月丘4-14-I
阪急宝塚線「池田」駅 バス13分、「渋谷中学校前」停 徒歩3分
-
4,980万円〜5,880万円the CASA山手町3-14-I
阪急千里線「関大前」駅 徒歩12分
-
3,480万円the CASA氷室町2-14-I
①JR東海道本線「摂津富田」駅 徒歩19分
②阪急京都線「富田」駅 バス12分、「氷室」停 徒歩4分 -
4,980万円the CASA桜ガ丘-14-I
①JR福知山線「宝塚」駅 徒歩12分
②阪急宝塚線「宝塚」駅 徒歩13分 -
5,480万円the CASA古曽部町3-14-I
①JR東海道本線「高槻」駅 バス7分、「古曽部台」停 徒歩4分
②JR東海道本線「高槻」駅 徒歩19分 -
5,280万円the CASA上ケ原六-14-I
阪急今津線「甲東園」駅 バス12分、「上ケ原六番町」停 徒歩1分
-
3,580万円the CASA畑原通5-14-I
①阪急神戸線「王子公園」駅 徒歩9分
②JR東海道本線「摩耶」駅 徒歩14分














