箕面市
分譲中物件
the CASA粟生間谷西7-13-I
4,980万円
-

大阪モノレール彩都線「彩都西」駅 バス6分、「山の口」停 徒歩10分

4LDK
南東角地の為、陽当り良好
高台の為、眺望・通風良好
閑静な住宅街

-
お電話でのお問い合わせ
TEL / 072-737-4447
営業時間 / 9:30~18:30
定休日 / 水曜日
CONCEPT
家族の温もりを感じながら、自分時間も楽しめる家

箕面市の南東に位置する、粟生間谷西。「東山遊園」や「東山南公園」など、近隣には公園が点在しており、小さなお子様がいるご家庭にはとてもぴったりな住環境です。
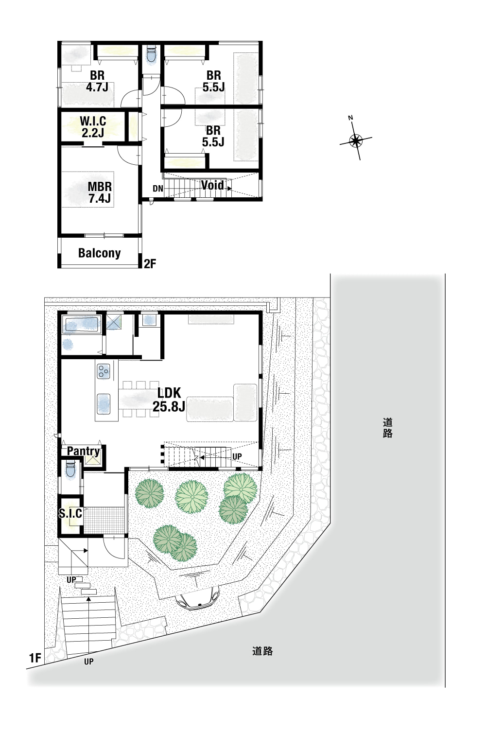
約25.8帖の広さを確保したLDK。L字型の配置が自然に空間を分け、家族みんながのびのびと過ごせる心地よい距離感を実現。お互いの存在を感じながら、穏やかな時間が流れます。また、キッチンや浴室、脱衣室をまとめた、使い勝手の良い動線設計を採用。家事や身支度がスムーズに行え、日々の暮らしにゆとりが生まれます。
寝室は4部屋をご用意。家族それぞれのプライベート空間を確保できるのはもちろん、書斎や趣味部屋として多目的に活用することも可能です。
パントリーやW.I.C、S.I.Cといった大容量クローゼットを配置。家族の持ち物もすっきり収まり、毎日の暮らしがぐっと快適になります。
一人ひとり、そして家族全員での時間を大切にできる工夫が詰まった住まいです。
PLAN
間取り

-

間取り 4LDK+W.I.C+S.I.C+パントリー
間取り図

4,980万円
4LDK+W.I.C+S.I.C+パントリー
敷地面積: 153.87㎡(約46.54坪)
建物面積: 120.74㎡(約36.52坪)
LOCATION
周辺環境

周辺の施設
- 教育機関
・豊川北小学校…徒歩約11分(約850m)
・第六中学校…徒歩約20分(約1,600m)
- 商業施設
・食品館アプロプラス箕面店…徒歩約8分(約600m)
・ファミリーマート彩都粟生南店…徒歩約17分(約1,300m)
- 公園
・東山遊園…徒歩約3分(約190m)
- その他施設
・箕面粟生間谷郵便局…徒歩約14分(約1,100m)
OUTLINE
物件概要

| 物件名 | the CASA粟生間谷西7-13-I |
|---|---|
| 所在地 | 箕面市粟生間谷西7丁目 |
| 交通 | 大阪モノレール彩都線「彩都西」駅 バス6分、「山の口」停 徒歩10分 |
| 総区画数 | 1区画 |
| 販売価格 |
|
| 間取り |
|
| 敷地面積 |
|
| 建物面積 |
|
| 現況 |
|
|---|---|
| 建築確認番号 |
|
| 建ぺい率 | 60% |
| 容積率 | 150% |
| 用途地域 | 第一種低層住居専用地域 |
| 地目 | 宅地 |
| 土地権利 | 所有権 |
| 設備 | 公営水道・関西電力・公共下水 |
| 学校区 | 豊川北小学校、第六中学校 |
担当店舗

関西不動産販売株式会社 箕面店
大阪府箕面市箕面5丁目11番8号 峰松ビル1階・2階
営業時間 / 9:30~18:30定休日 / 水曜日駐車場 / 有(契約駐車場:箕面駅前第二駐車場)
アクセス / 阪急「箕面」駅から徒歩7分。阪急バス「箕面警察前」停徒歩1分。

-
お電話でのお問い合わせ
TEL / 072-737-4447
営業時間 / 9:30~18:30
定休日 / 水曜日
CONTACT
お問い合わせ

媒介会社までお気軽にお問い合わせください。
近くにある物件
-
4,980万円〜5,480万円the CASA半町4-14-I・III
①阪急箕面線「桜井」駅 徒歩14分
②大阪モノレール線「柴原阪大前」駅 徒歩15分
③阪急宝塚線「石橋阪大前」駅 徒歩19分 -
4,980万円the CASA粟生間谷西7-13-I
大阪モノレール彩都線「彩都西」駅 バス6分、「山の口」停 徒歩10分
-
4,980万円〜5,480万円the CASA森町中1-13-I
北大阪急行線「箕面萱野」駅 バス17分、「箕面森町地区センター」停 徒歩5分
-
11,800万円the CASA小野原東4-13-I
大阪モノレール彩都線「豊川」駅 徒歩5分
-
7,480万円the CASA箕面2-13-I
阪急箕面線「箕面」駅 徒歩8分
-
3,180万円the CASA瀬川1-13-I
阪急箕面線「桜井」駅 徒歩13分
-
5,180万円the CASA小野原西2-12-I
大阪モノレール彩都線「豊川」駅 徒歩19分
-
3,980万円〜4,180万円the CASA桜井3-10-I
阪急箕面線「桜井」駅 徒歩10分
新着物件
-
4,980万円the CASA南平台4-14-I
JR東海道本線「摂津富田」駅 バス16分、「南平台西口」停 徒歩2分
-
4,280万円〜5,280万円the CASA五月丘4-14-I
阪急宝塚線「池田」駅 バス13分、「渋谷中学校前」停 徒歩3分
-
4,980万円〜5,880万円the CASA山手町3-14-I
阪急千里線「関大前」駅 徒歩12分
-
3,480万円the CASA氷室町2-14-I
①JR東海道本線「摂津富田」駅 徒歩19分
②阪急京都線「富田」駅 バス12分、「氷室」停 徒歩4分 -
4,980万円the CASA桜ガ丘-14-I
①JR福知山線「宝塚」駅 徒歩12分
②阪急宝塚線「宝塚」駅 徒歩13分 -
5,480万円the CASA古曽部町3-14-I
①JR東海道本線「高槻」駅 バス7分、「古曽部台」停 徒歩4分
②JR東海道本線「高槻」駅 徒歩19分 -
5,280万円the CASA上ケ原六-14-I
阪急今津線「甲東園」駅 バス12分、「上ケ原六番町」停 徒歩1分
-
3,580万円the CASA畑原通5-14-I
①阪急神戸線「王子公園」駅 徒歩9分
②JR東海道本線「摩耶」駅 徒歩14分









