西宮市
分譲中物件
the CASA若草町2-13-I
7,980万円
-

①阪神本線「鳴尾・武庫川女子大前」駅 徒歩12分
②阪神本線「武庫川」駅 徒歩17分
③阪神本線「甲子園」駅 徒歩18分 
3LDK
前面道路幅員 約5.8m
1沿線で3駅利用可能

-
お電話でのお問い合わせ
TEL / 0798-31-0700
営業時間 / 9:30~18:30
定休日 / 水曜日
CONCEPT
3駅が利用可能な屋外空間のあるひだまりハウス

阪神本線「鳴尾・武庫川女子大前」「武庫川」「甲子園」の3駅が利用可能な若草町2丁目。教育施設や商業施設も身近に揃い、暮らしやすさと利便性を兼ね備えた住みよいエリアです。
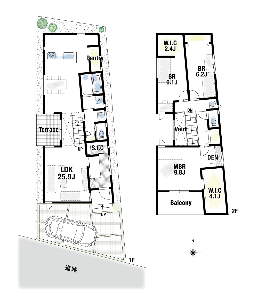
LDKの中心に吹抜けと屋外空間を設けた間取り。室内に開放感と柔らかな陽光を届けます。晴れの日のテラスでは家族でBBQを楽しむ・窓を開け放ってアウトドアリビングなど日常を彩ります。住まいの2箇所にはW.I.Cを配置。衣服だけでなく季節の家電や布団も収納することができ、整理整頓が行き届いた綺麗な暮らしを叶えます。また、主寝室には書斎を配置しており、リモートワークや趣味の時間で活用することができます。
豊かに日常を過ごせる住環境で、外空間を気軽に味わえるプランを提供します。
PLAN
間取り

-

間取り 3LDK+DEN(書斎)+W.I.C×2+S.I.C+パントリー
間取り図

7,980万円
3LDK+DEN(書斎)+W.I.C×2+S.I.C+パントリー
敷地面積: 119.00㎡(約35.99坪)
建物面積: 130.37㎡(約39.43坪)
LOCATION
周辺環境

周辺の施設
- 教育機関
・鳴尾北小学校…徒歩約3分(約180m)
・学文中学校…徒歩約2分(約140m)
- 商業施設
・コープ西宮東…徒歩約3分(約210m)
・セブンイレブン西宮若草町店…徒歩約4分(約250m)
- 公園
・老松公園…徒歩約2分(約150m)
- その他施設
・西宮若草郵便局…徒歩約4分(約300m)
OUTLINE
物件概要

| 物件名 | the CASA若草町2-13-I |
|---|---|
| 所在地 | 西宮市若草町2丁目 |
| 交通 | ①阪神本線「鳴尾・武庫川女子大前」駅 徒歩12分 ②阪神本線「武庫川」駅 徒歩17分 ③阪神本線「甲子園」駅 徒歩18分 |
| 総区画数 | 1区画 |
| 販売価格 |
|
| 間取り |
|
| 敷地面積 |
|
| 建物面積 |
|
| 現況 |
|
|---|---|
| 建築確認番号 |
|
| 用途地域 | 第一種中高層住居専用地域 |
| 地目 | 宅地 |
| 土地権利 | 所有権 |
| 設備 | 公営水道・関西電力・公共下水・都市ガス |
| 学校区 | 鳴尾北小学校、学文中学校 |
担当店舗

関西不動産販売株式会社 西宮店
兵庫県西宮市産所町14番5号 ニュートンビル西宮1階
営業時間 / 9:30~18:30定休日 / 水曜日駐車場 / 有
アクセス / JR「さくら夙川」駅より徒歩約4分。国道2号線沿いにございます。

-
お電話でのお問い合わせ
TEL / 0798-31-0700
営業時間 / 9:30~18:30
定休日 / 水曜日
CONTACT
お問い合わせ

媒介会社までお気軽にお問い合わせください。
近くにある物件
-
7,980万円the CASA若草町2-13-I
①阪神本線「鳴尾・武庫川女子大前」駅 徒歩12分
②阪神本線「武庫川」駅 徒歩17分
③阪神本線「甲子園」駅 徒歩18分 -
5,980万円the CASA毘沙門町-13-I
阪急甲陽線「甲陽園」駅 徒歩15分
-
6,980万円the CASA段上町5-13-I
阪急今津線「仁川」駅 徒歩13分
-
6,980万円the CASA愛宕山-13-I
阪急今津線「門戸厄神」駅 徒歩15分
-
3,980万円the CASA小松東町2-13-I
阪神本線「武庫川」駅 徒歩10分
-
8,980万円the CASA苦楽園四-13-I
阪急甲陽線「苦楽園口」駅 バス6分、「苦楽園」停 徒歩4分
-
6,980万円the CASA仁川町6-12-I
阪急今津線「仁川」駅 徒歩18分
-
4,480万円the CASA生瀬高台-12-III
JR福知山線「生瀬」駅 徒歩11分
新着物件
-
4,580万円the CASA日吉台六-14-I
JR東海道本線「高槻」駅 バス17分、「成合旭橋」停 徒歩2分
-
6,980万円the CASA寿楽荘-14-I
①阪急今津線「宝塚南口」駅 徒歩9分
②阪急今津線「逆瀬川」駅 徒歩10分 -
3,980万円the CASA柱本6-14-I
阪急京都線「摂津市」駅 バス27分、「摂津ふれあいの里」停 徒歩8分
-
7,980万円the CASA若草町2-13-I
①阪神本線「鳴尾・武庫川女子大前」駅 徒歩12分
②阪神本線「武庫川」駅 徒歩17分
③阪神本線「甲子園」駅 徒歩18分 -
5,680万円the CASA北春日丘3-13-I
JR東海道本線「茨木」駅 バス13分、「春日丘公園」停 徒歩5分
-
4,980万円the CASA粟生間谷西7-13-I
大阪モノレール彩都線「彩都西」駅 バス6分、「山の口」停 徒歩10分
-
5,980万円the CASA毘沙門町-13-I
阪急甲陽線「甲陽園」駅 徒歩15分
-
6,980万円〜7,980万円the CASA逆瀬台4-13-I
阪急今津線「逆瀬川」駅 バス9分、「逆瀬台一丁目」停 徒歩2分










