宝塚市
契約済
the CASA宝梅1-12-I
-

阪急宝塚線「逆瀬川」駅 徒歩9分

3LDK
前面道路幅員 約5.4m
広々間口 約20.5m
閑静な住宅街

-
お電話でのお問い合わせ
TEL / 0797-69-8181
営業時間 / 9:00~18:00
定休日 / 水曜日
CONCEPT
土地の特性を活かした設計力が光る住まい

緑豊かで閑静な邸宅街、宝梅1丁目。徒歩圏内に公園が点在しているほか、約2.5kmの距離に中国自動車道インターチェンジがあり、遠方のお出かけなど子育て世代には嬉しい立地です。
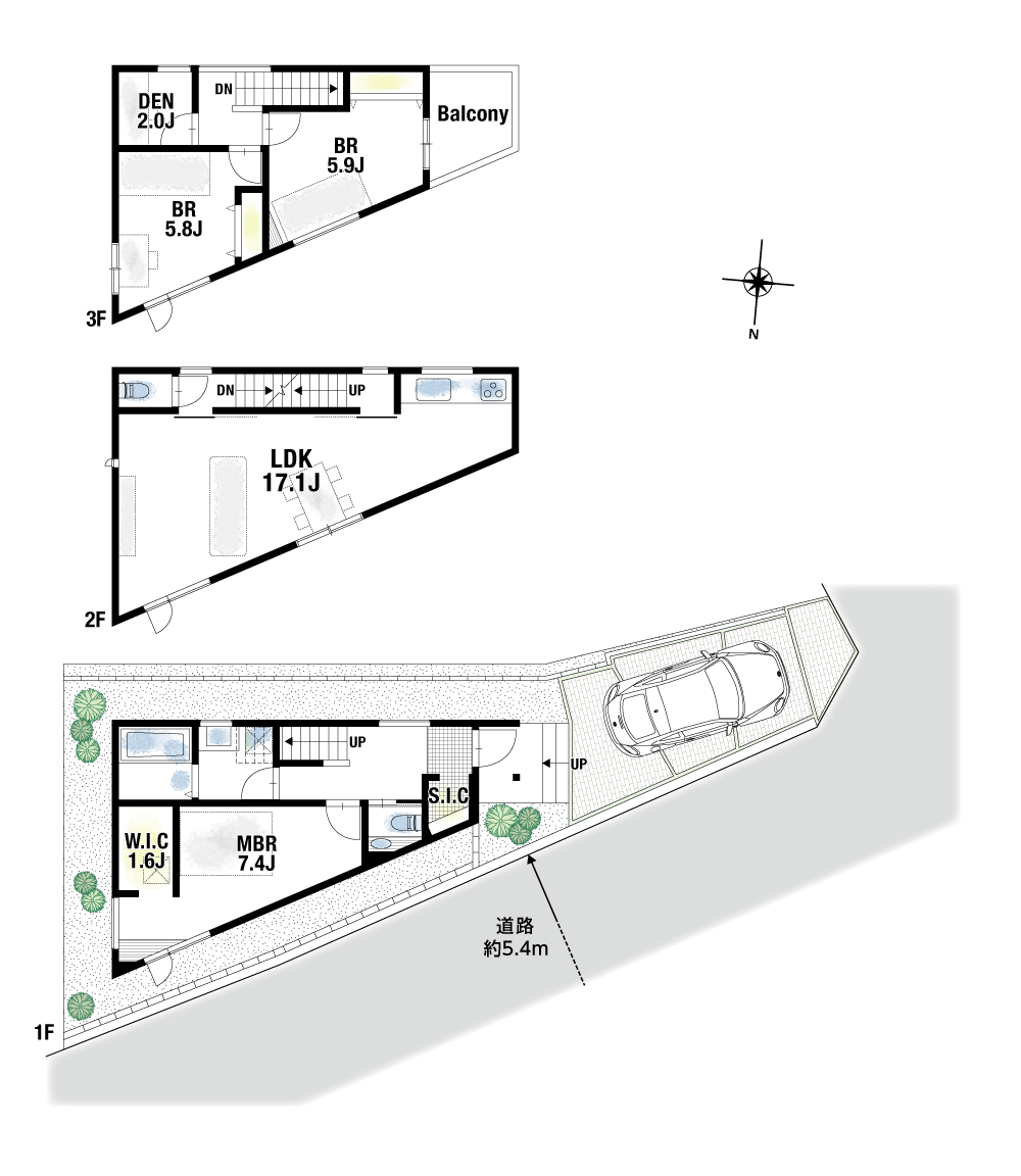
LDKを2階に配置することで、通行人の視線を感じることなく、ゆったりくつろげるプライベートな空間に。1階の主寝室には床下収納付きのW.I.Cとカウンターを併設しています。カウンターは読書など趣味を楽しんだり、ドレッサーや身支度スペースとして活用するなど様々な使い方ができます。玄関横にはS.I.Cを設置。靴はもちろんベビーカーやアウトドアグッズも収納できる十分な広さを確保しています。
限られた敷地を無駄なく活かし、開放的で暮らしやすい住まいを実現しました。
PLAN
間取り

-

間取り: (3LDK+DEN(書斎)+W.I.C+S.I.C)
間取り図

3,680万円
3LDK+DEN(書斎)+W.I.C+S.I.C
敷地面積: 94.58㎡(約28.61坪)
建物面積: 96.04㎡(約29.05坪)
LOCATION
周辺環境

周辺の施設
- 教育機関
・宝塚第一小学校…徒歩約4分(約290m)
・宝梅中学校…徒歩約9分(約700m)
- 商業施設
・アピアきた…徒歩約9分(約700m)
・ヤマザキショップ…徒歩約6分(約450m)
- 公園
・宝梅公園…徒歩約2分(約220m)
- その他施設
・宝塚野上郵便局…徒歩約9分(約650m)
OUTLINE
物件概要

| 物件名 | the CASA宝梅1-12-I |
|---|---|
| 所在地 | 宝塚市宝梅1丁目 |
| 交通 | 阪急宝塚線「逆瀬川」駅 徒歩9分 |
| 総区画数 | 1区画 |
| 販売価格 |
|
| 間取り |
|
| 敷地面積 |
|
| 建物面積 |
|
| 現況 |
|
|---|---|
| 建築確認番号 |
|
| 建ぺい率 | 50% |
| 容積率 | 100% |
| 用途地域 | 第一種低層住居専用地域 |
| 地目 | 宅地 |
| 土地権利 | 所有権 |
| 設備 | 公営水道・関西電力・公共下水・都市ガス |
| 学校区 | 宝塚第一小学校、宝梅中学校 |
担当店舗

関西不動産販売株式会社 宝塚店
兵庫県宝塚市逆瀬川1丁目1番1号 イトーピア参鐘館2階
営業時間 / 9:00~18:00定休日 / 水曜日駐車場 / 有(契約駐車場:タイムズアピア3)
アクセス / 阪急「逆瀬川」駅より徒歩約2分。

-
お電話でのお問い合わせ
TEL / 0797-69-8181
営業時間 / 9:00~18:00
定休日 / 水曜日
CONTACT
お問い合わせ

近くにある物件
-
6,980万円the CASA寿楽荘-14-I
①阪急今津線「宝塚南口」駅 徒歩9分
②阪急今津線「逆瀬川」駅 徒歩10分 -
6,980万円〜7,980万円the CASA逆瀬台4-13-I
阪急今津線「逆瀬川」駅 バス9分、「逆瀬台一丁目」停 徒歩2分
-
6,580万円the CASA逆瀬台6-13-I
阪急今津線「逆瀬川」駅 バス13分、「青葉台口」停 徒歩5分
-
6,980万円the CASA雲雀丘3-13-I
阪急宝塚本線「雲雀丘花屋敷」駅 徒歩12分
-
12,800万円the CASA南口2-13-I
阪急宝塚線「宝塚南口」駅 徒歩3分
-
4,980万円the CASA売布ガ丘-13-I
①阪急宝塚線「売布神社」駅 徒歩7分
②阪急宝塚線「清荒神」駅 徒歩11分 -
3,980万円the CASA花屋敷荘園3-13-I
①阪急宝塚線「川西能勢口」駅 徒歩17分
②能勢電鉄妙見線「川西能勢口」駅 徒歩17分 -
3,980万円the CASAふじガ丘-13-I
阪急宝塚線「雲雀丘花屋敷」駅 バス9分、「満願寺」停 徒歩7分
新着物件
-
3,480万円the CASA氷室町2-14-I
①JR東海道本線「摂津富田」駅 徒歩19分
②阪急京都線「富田」駅 バス12分、「氷室」停 徒歩4分 -
5,480万円the CASA城南町1-14-I
阪急京都線「高槻市」駅 バス6分、「東庄所」停 徒歩5分
-
4,580万円the CASA日吉台六-14-I
JR東海道本線「高槻」駅 バス17分、「成合旭橋」停 徒歩2分
-
6,180万円〜6,380万円the CASA御陵溝浦町-14-I
阪急京都線「桂」駅 徒歩15分
-
4,980万円the CASA沢良宜西4-14-I
①大阪モノレール線「沢良宜」駅 徒歩2分
②阪急京都線「南茨木」駅 徒歩14分 -
3,980万円the CASA牧落3-14-I
阪急箕面線「牧落」駅 徒歩12分
-
6,980万円the CASA寿楽荘-14-I
①阪急今津線「宝塚南口」駅 徒歩9分
②阪急今津線「逆瀬川」駅 徒歩10分 -
3,980万円the CASA柱本6-14-I
阪急京都線「摂津市」駅 バス27分、「摂津ふれあいの里」停 徒歩8分








