高槻市
分譲中物件
the CASA南平台1-14-I
6,480万円
-

①JR東海道本線「高槻」駅 バス12分、「南平台東」停 徒歩6分
②JR東海道本線「摂津富田」駅 バス16分、「南平台南」停 徒歩5分 
4LDK
二方空きの為、通風良好
北東側道路幅員
閑静な住宅街に

-
お電話でのお問い合わせ
TEL / 0797-69-8181
営業時間 / 9:00~18:00
定休日 / 水曜日
6,480万円
-

①JR東海道本線「高槻」駅 バス12分、「南平台東」停 徒歩6分
②JR東海道本線「摂津富田」駅 バス16分、「南平台南」停 徒歩5分 4LDK
二方空きの為、通風良好
北東側道路幅員
閑静な住宅街に
CONCEPT
効率的な家事動線を叶える、開放感に満ちた住まい

周辺に歴史的価値のある古墳が点在する閑静な住宅街、南平台1丁目。近くには複合遊具やシーソーが設けられた「南平台中央公園」があり、お子様がのびのびと遊べる環境が整っています。
1階のLDKは吹抜けとリビング階段を合わせた構造。陽光を取り込み、上下階のつながりを感じられる開放的な空間を演出します。同階にはテラスに繋がる家事室を設計。洗濯物を干す、取り込むまでをスムーズに行えるほか、アイロンがけや洗濯物の一時置きスペースとしても活用でき、日々の家事をサポートします。
室内にはW.I.CやS.I.Cといった大容量の収納を配置。衣類や日用品まで用途ごとにすっきりと収めることができ、日常の動線を妨げることなく、美しい空間が心地よく続きます。また、2台分の駐車スペースを完備しており、1台分を来客用駐車場としても活用いただけます。
子育て環境と利便性に恵まれ、家事動線に配慮した日々の暮らしを支える住まいです。
PLAN
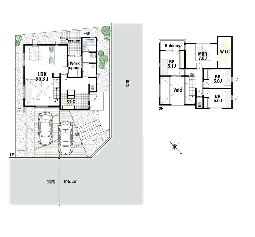
間取り

-

間取り 4LDK+ワークスペース+W.I.C+S.I.C
間取り図

6,480万円
4LDK+ワークスペース+W.I.C+S.I.C
敷地面積: 190.82㎡(約57.72坪)
建物面積: 148.22㎡(約44.83坪)
LOCATION
周辺環境

周辺の施設
- 教育機関
・南平台小学校…徒歩約10分(約800m)
・阿武野中学校…徒歩約13分(約1,000m)
- 商業施設
・フードネットマート高槻店…徒歩約12分(約900m)
・セブンイレブン高槻郡家新町店…徒歩約12分(約900m)
- 公園
・南平台南公園…徒歩約2分(約160m)
- その他施設
・高槻南平台郵便局…徒歩約10分(約750m)
OUTLINE
物件概要

| 物件名 | the CASA南平台1-14-I |
|---|---|
| 所在地 | 大阪府高槻市南平台1丁目 |
| 交通 | ①JR東海道本線「高槻」駅 バス12分、「南平台東」停 徒歩6分 ②JR東海道本線「摂津富田」駅 バス16分、「南平台南」停 徒歩5分 |
| 総区画数 | 1区画 |
| 販売価格 |
|
| 間取り |
|
| 敷地面積 |
|
| 建物面積 |
|
| 現況 |
|
|---|---|
| 建築確認番号 |
|
| 建ぺい率 | 50% |
| 容積率 | 100% |
| 用途地域 | 第一種低層住居専用地域 |
| 地目 | 宅地 |
| 土地権利 | 所有権 |
| 設備 | 公営水道・関西電力・公共下水・都市ガス |
| 学校区 | 南平台小学校、阿武野中学校 |
担当店舗

関西不動産販売株式会社 宝塚店
兵庫県宝塚市逆瀬川1丁目1番1号 イトーピア参鐘館2階
営業時間 / 9:00~18:00定休日 / 水曜日駐車場 / 有(契約駐車場:タイムズアピア3)
アクセス / 阪急「逆瀬川」駅より徒歩約2分。

-
お電話でのお問い合わせ
TEL / 0797-69-8181
営業時間 / 9:00~18:00
定休日 / 水曜日
CONTACT
お問い合わせ

媒介会社までお気軽にお問い合わせください。
近くにある物件
-
4,980万円the CASA南平台4-14-I
JR東海道本線「摂津富田」駅 バス16分、「南平台西口」停 徒歩2分
-
3,480万円the CASA氷室町2-14-I
①JR東海道本線「摂津富田」駅 徒歩19分
②阪急京都線「富田」駅 バス12分、「氷室」停 徒歩4分 -
5,480万円the CASA古曽部町3-14-I
①JR東海道本線「高槻」駅 バス7分、「古曽部台」停 徒歩4分
②JR東海道本線「高槻」駅 徒歩19分 -
3,380万円the CASA柱本6-14-III
阪急京都線「茨木市」駅 バス20分、「柱本団地」停 徒歩6分
-
4,580万円the CASA宮之川原3-14-I
JR東海道本線「高槻」駅 バス28分、「伏原」停 徒歩5分
-
4,580万円the CASA日吉台六-14-I
JR東海道本線「高槻」駅 バス17分、「成合旭橋」停 徒歩2分
-
6,480万円the CASA南平台1-14-I
①JR東海道本線「高槻」駅 バス12分、「南平台東」停 徒歩6分
②JR東海道本線「摂津富田」駅 バス16分、「南平台南」停 徒歩5分 -
3,980万円the CASA柱本6-14-I
阪急京都線「摂津市」駅 バス27分、「摂津ふれあいの里」停 徒歩8分
新着物件
-
4,480万円the CASA生瀬高台-13-II
JR福知山線「生瀬」駅 徒歩12分
-
4,980万円the CASA南平台4-14-I
JR東海道本線「摂津富田」駅 バス16分、「南平台西口」停 徒歩2分
-
4,280万円〜5,280万円the CASA五月丘4-14-I
阪急宝塚線「池田」駅 バス13分、「渋谷中学校前」停 徒歩3分
-
4,980万円〜5,880万円the CASA山手町3-14-I
阪急千里線「関大前」駅 徒歩12分
-
3,580万円〜3,780万円the CASA花屋敷荘園3-14-I
①能勢電鉄妙見線「川西能勢口」駅 徒歩17分
②阪急宝塚線「川西能勢口」駅 徒歩17分 -
4,180万円the CASA広瀬4-14-I
①阪急京都線「水無瀬」駅 徒歩9分
②JR東海道本線「島本」駅 徒歩11分 -
3,480万円the CASA氷室町2-14-I
①JR東海道本線「摂津富田」駅 徒歩19分
②阪急京都線「富田」駅 バス12分、「氷室」停 徒歩4分 -
4,980万円the CASA桜ガ丘-14-I
①JR福知山線「宝塚」駅 徒歩12分
②阪急宝塚線「宝塚」駅 徒歩13分








