高槻市
分譲中物件
the CASA安岡寺町5-13-I
3,980万円〜4,280万円
-

JR東海道本線「高槻」駅 バス20分、「松が丘」停 徒歩5分

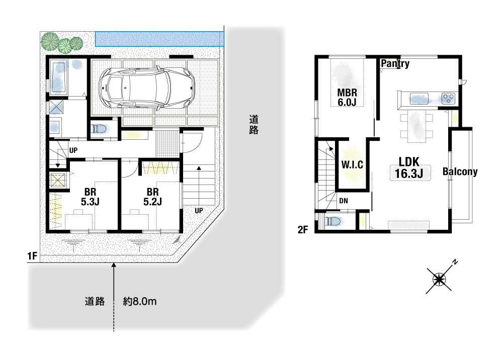
3LDK
南東向きのため、陽当り良好
南東側道路幅員 約8.0m
閑静な住宅街

-
お電話でのお問い合わせ
TEL / 075-874-4000
営業時間 / 9:30~18:30
定休日 / 水曜日
CONCEPT
四季の彩りを愉しみ家族が集う住まい

一戸建てが建ち並ぶ閑静な住宅街、安岡寺町5丁目。周囲を豊かな山林に囲まれ、四季の移ろいを身近に感じながら、穏やかな日々をお過ごしいただけます。
限られた敷地を最大限に活かした設計で、快適な住空間を実現。1号地のLDKは2階に配置されており、通行人の視線を気にせず過ごせるプライベートな空間です。リビングに隣接するバルコニーからは光と風が心地よく入り込み、明るく開放的な時間を演出します。2号地は玄関からキッチンが直通となっているので、荷物の運び入れがスムーズに行えます。また、全邸共に収納スペースを各所に設けており、すっきりとした暮らしをサポートします。家族の時間を大切にできる、心地よさと機能性を兼ね備えた邸宅です。
PLAN
間取り

-

間取り1号地 : 3LDK+W.I.C+パントリー
-

間取り2号地 : 3LDK+W.I.C+S.I.C
-

分譲地区画図
間取り図

1号地 4,280万円
3LDK+W.I.C+パントリー
敷地面積: 約78.51㎡(約23.74坪)
建物面積: 98.12㎡(約29.68坪)

2号地 3,980万円
3LDK+W.I.C+S.I.C
敷地面積: 約92.56㎡(約27.99坪)
建物面積: 91.70㎡(約27.73坪)
区画図

分譲地区画図
全3区画全体区画図
区画図

分譲地区画図
全3区画全体区画図
LOCATION
周辺環境

周辺の施設
- 教育機関
北清水小学校…徒歩約1分(約80m)
第九中学校 …徒歩約15分(約1,200m)
- 商業施設
KOHYO松が丘店…徒歩約13分(約1,000m)
セブンイレブン高槻安岡寺1丁目店…徒歩約14分(約1,100m)
- 公園
安岡寺町四丁目ひまわり児童遊園…徒歩約5分(約350m)
- その他施設
高槻松が丘郵便局…徒歩約4分(約290m)
OUTLINE
物件概要

| 物件名 | the CASA安岡寺町5-13-I |
|---|---|
| 所在地 | 高槻市安岡寺町5丁目 |
| 交通 | JR東海道本線「高槻」駅 バス20分、「松が丘」停 徒歩5分 |
| 総区画数 | 3区画 |
| 販売価格 |
|
| 間取り |
|
| 敷地面積 |
|
| 建物面積 |
|
| 現況 |
|
|---|---|
| 建築確認番号 |
|
| 建ぺい率 | 50% |
| 容積率 | 100% |
| 用途地域 | 第一種低層住居専用地域 |
| 地目 | 宅地 |
| 土地権利 | 所有権 |
| 設備 | 公営水道・関西電力・公共下水・都市ガス |
| 学校区 | 北清水小学校、第九中学校 |
担当店舗

関西不動産販売株式会社 京都桂川店
京都府京都市南区久世上久世町798番地1
営業時間 / 9:30~18:30定休日 / 水曜日駐車場 / 有
アクセス / JR「桂川」駅より徒歩10分。国道171号線沿いにございます。

-
お電話でのお問い合わせ
TEL / 075-874-4000
営業時間 / 9:30~18:30
定休日 / 水曜日
CONTACT
お問い合わせ

媒介会社までお気軽にお問い合わせください。
近くにある物件
-
4,580万円the CASA日吉台六-14-I
JR東海道本線「高槻」駅 バス17分、「成合旭橋」停 徒歩2分
-
3,980万円the CASA柱本6-14-I
阪急京都線「摂津市」駅 バス27分、「摂津ふれあいの里」停 徒歩8分
-
6,980万円the CASA日吉台一-13-I
JR東海道本線「高槻」駅 バス8分、「日吉台口」停 徒歩4分
-
4,980万円the CASA日吉台五-13-II
JR東海道本線「高槻」駅 バス22分、「東公園」停 徒歩5分
-
4,980万円the CASA清水台1-13-I
JR東海道本線「高槻」駅 バス17分、「安岡寺住宅」停 徒歩10分
-
3,980万円〜4,280万円the CASA安岡寺町5-13-I
JR東海道本線「高槻」駅 バス20分、「松が丘」停 徒歩5分
-
4,980万円the CASA宮が谷町-13-I
JR東海道本線「高槻」駅 バス23分、「南公園」停 徒歩7分
-
4,980万円the CASA別所本町-13-II
JR東海道本線「高槻」駅 バス12分、「磐手校前」停 徒歩3分
新着物件
-
4,580万円the CASA日吉台六-14-I
JR東海道本線「高槻」駅 バス17分、「成合旭橋」停 徒歩2分
-
6,180万円〜6,380万円the CASA御陵溝浦町-14-I
阪急京都線「桂」駅 徒歩15分
-
4,980万円the CASA沢良宜西4-14-I
①大阪モノレール線「沢良宜」駅 徒歩2分
②阪急京都線「南茨木」駅 徒歩14分 -
3,980万円the CASA牧落3-14-I
阪急箕面線「牧落駅」駅 徒歩12分
-
6,980万円the CASA寿楽荘-14-I
①阪急今津線「宝塚南口」駅 徒歩9分
②阪急今津線「逆瀬川」駅 徒歩10分 -
3,980万円the CASA柱本6-14-I
阪急京都線「摂津市」駅 バス27分、「摂津ふれあいの里」停 徒歩8分
-
7,980万円the CASA若草町2-13-I
①阪神本線「鳴尾・武庫川女子大前」駅 徒歩12分
②阪神本線「武庫川」駅 徒歩17分
③阪神本線「甲子園」駅 徒歩18分 -
5,680万円the CASA北春日丘3-13-I
JR東海道本線「茨木」駅 バス13分、「春日丘公園」停 徒歩5分







